Eladó lakás Budapest VII. ker 67 900 000 Ft

Leírás

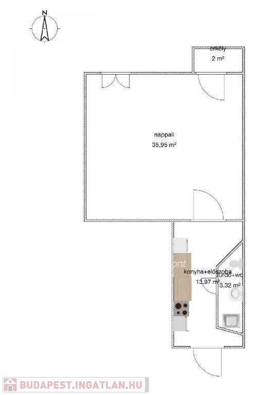
Eladó belvárosi 2. emeleti lakás a Dohány utca közelében!

Ha a belváros szívében keres otthont vagy befektetési lehetőséget, ez a könnyen elérhető, világos lakás ideális választás lehet. Az utcai kilátással rendelkező ingatlan az épület egyetlen olyan lakása amelynek van erkélye.
Főbb jellemzők:

* Kitűnő helyen: A Dohány utca és az Erzsébet-körút, valamint a Rákóczi út is pár perc sétára van. A környéken rengeteg étterem, élelmiszerbolt (pl. Lidl), üzlet található, így minden kéznél van.

* Közlekedés: A buszok, villamosok és a metró egyaránt könnyen elérhetők, így gyorsan eljuthat bárhova a városban.

* Jó elosztás: Egy szobával, konyhával, fürdőszobával és WC-vel rendelkezik, az ingatlan részben bútorozott, a konyha teljesen felszerelt. A konyhai eszközök és gépek megegyezés tárgyát képzik.

* Modern komfort: klimatizált, vízórás, új vezetékekkel ellátott lakás. A gáz-cirkófűtés, de oldalról és felülről is fűti a többi lakás, így hatékony és gazdaságos a fűtés.

* Közös költség: mindössze 13.500 Ft, és tartalmazza a vizet és a szemét elszállítást is.

* Extra: a lakásban van hűtő-fűtő klíma, hívós lift, és az épület új vezetékekkel ellátott.

Közterületi parkolás fizetős, de könnyen megoldható a környéken.

* Kiváló helyszín: rengeteg egyetem, intézmény és kulturális program elérhető közelben. Ideális diákoknak, fiataloknak vagy befektetőknek egyaránt.
Ez a lakás tökéletes választás azoknak, akik a város központjában szeretnének élni, vagy hosszú távra kiadni. Könnyen megközelíthető, jó elosztású, és remek ár-érték arányban kínálja a belvárosi élet minden előnyét.

Ne habozzon, keressen most, és tekintse meg személyesen is!

Lakás részletei

Ár: 67 900 000 Ft
Méret: 45 négyzetméter
Azonosító: 11562255
Irodai azonosító: M305626-5024879
Emelet: 2. emelet
Építőanyag: Tégla
Fűtés jellege: Cirkó
Ingatlan állapota:
Komfort fokozat: Összkomfort
Építési év: 50 évesnél régebbi
Kilátás: utcai
Egész szobák: 1

Egyéb jellemzők

  • Erkély
  • Lift

Térkép


Így keressen budapesti ingatlant négy egyszerű lépésben. Csupán 2 perc, kötelezettségek nélkül!

Szűkítse a budapesti ingatlanok
listáját
Válassza ki a megfelelő
budapesti ingatlant
Írjon a hirdetőnek
Várjon a visszahívásra