Eladó lakás Budapest VII. ker 180 000 000 Ft

Leírás

Belvárosban, turisztikailag frekventált helyen, (Blaha Lujza tér közelében) legfelső emeleti, két külön bejáratos lakrésszel rendelkező, napfényes nagypolgári lakás eladó.

Szmoghatár feletti ingatlan, hő és hangszigertelt belső falazattal.

A LAKÓHÁZ a századforduló előtt épült, 3 emeletes eklektikus épület.

A teljes körű felújításakor törekedteka lakás eredeti elemeinek megörzésére azokat harmónikusan ötvözve a korszerűséggel.

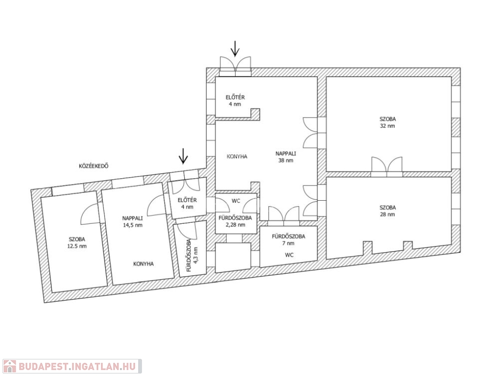
A LAKÁS 141 nm alapterületű, két KÜLÖN lakrésze van, ezek igény esetén összenyithatók.
Elrendezés: 108 nm-es lakrész helyiségei: 2 külön és egybe is nyíló szoba, 38 nm-es nappali amerikai konyhával, 2 fürdőszoba;
35 nmes lakrész helyiségei: amerikai konyhás nappali, egy hálószoba, fürdőszoba és közlekedő.

Fűtés:
I. kondenzációs gázkazán radiátoros hőleadókkal a meleg burkolatú szobákban, padlófűtés a hidegburkolatos helyiségekben;
II. 4 db inverteres hűtő/fűtő klíma;
III. acél béléses kémény kiépítve egy nyílt égésterű kandallóhoz.

Központi porszívó rendszer kiéítve.
Riasztórendszer.

A lakás felújítása óta folyamatosan bérbevan adva. Igényes berendezése megvásárolható.

Magas műszaki tartalmú és praktikus elrendezésű lakás, iroda vagy további bérbeadás céljára egyaránt alkalmas.


Amennyiben az ingatlanvásárlásához banki finanszírozást is igénybe kíván venni, úgy BANKFÜGGETLEN hitelügyintéző kollégáink szívesen nyújtanak felvilágosítást az aktuális hitelekkel, CSOK-kal, az egyénre szabott kedvezményekkel kapcsolatban.

Lakás részletei

Ár: 180 000 000 Ft
Méret: 141 négyzetméter
Azonosító: 11388913
Irodai azonosító: 368305
Cím: Erzsébetváros
Emelet: 3. emelet
Építőanyag: Tégla
Fűtés jellege: Cirkó
Ingatlan állapota: Felújított
Komfort fokozat: Dupla komfort
Építési év: 50 évesnél régebbi
Tulajdonviszony: Saját
Kilátás: utcai
Egész szobák: 5

Egyéb jellemzők

  • Erkély
  • Garázs
  • Lift
  • Pince
  • Tároló

Térkép


Így keressen budapesti ingatlant négy egyszerű lépésben. Csupán 2 perc, kötelezettségek nélkül!

Szűkítse a budapesti ingatlanok
listáját
Válassza ki a megfelelő
budapesti ingatlant
Írjon a hirdetőnek
Várjon a visszahívásra