Eladó lakás Budapest VII. ker 122 550 000 Ft

Leírás

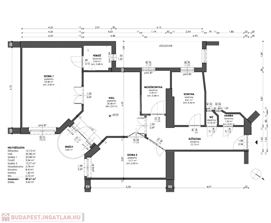
Eladásra kínálunk egy felújítandó állapotú, téglaépítésű lakást Budapest Hernád utcájában.
A lakás 92 négyzetméteres, helyet kapott benne 3 szoba, konyha, fürdőszoba, WC külön helyiségben, kamra előszoba, 3,5 m beltéri magassággal, nagy nyílászárókkal. Az ingatlanhoz tartozik egy 4 négyzetméteres erkély is, amely utcai kilátást nyújt.
A lakóegység a ház 3. emeletén található körfolyosóról nyílik, a házban lift biztosítja a kényelmes közlekedést.
A társasház egy impozáns épület, kívülről felújításra szorul, a lépcsőház új bejárati ajtóval, szépen felújított ikonikus mozaikcsempével díszített, tiszta lépcsőház.
A fűtésről gázkonvektorok, a melegvízről villanybojler gondoskodik.
Boltok közelben.
Közlekedés jó.
A környék csendes és nyugodt, egyirányú forgalom a ház előtt, ideális választás lehet azok számára, akik nyugalmat keresnek.
ID.389923

Lakás részletei

Ár: 122 550 000 Ft
Méret: 88 négyzetméter
Azonosító: 11581795
Irodai azonosító: 389923
Cím: Hernád utca
Emelet: 3. emelet
Építőanyag: Tégla
Fűtés jellege: Konvektoros
Ingatlan állapota: Felújítandó
Komfort fokozat: Összkomfort
Építési év: 50 évesnél régebbi
Tulajdonviszony: Saját
Kilátás: utcai
Egész szobák: 3

Egyéb jellemzők

  • Erkély
  • Garázs
  • Lift
  • Pince
  • Tároló

Térkép


Így keressen budapesti ingatlant négy egyszerű lépésben. Csupán 2 perc, kötelezettségek nélkül!

Szűkítse a budapesti ingatlanok
listáját
Válassza ki a megfelelő
budapesti ingatlant
Írjon a hirdetőnek
Várjon a visszahívásra