Eladó lakás Budapest VI. ker, Terézváros, 84 000 000 Ft

Leírás

BEVEZETŐ ÁRON

Eladó ÚJÉPÍTÉSŰ lakások a VI. Rózsa utcában, az Andrássy út közvetlen közelében.
Az új lakások a meglévő épületre történt szintráépítéssel lettek kialakítva.

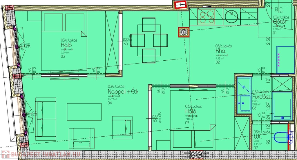
3/C - lakás 48nm 84.0 Millió Ft

Fűtés: hőszivattyú által, padló és mennyezet fűtés
Melegvíz: elektromos vízmelegítő (bojler)
Az ár nem tartalmazza a bútorzatot és a gépesítést, de kérés esetén megegyezés tárgyát képezi.

További megvásárolható lakások:

2.emelet:
3/A - lakás 35nm 61.25 Millió Ft
4/B - lakás 48nm 84.0 Millió Ft


3.emelet:
8/A - lakás 56nm 98.0 Millió Ft
8/B - lakás 48nm 84.0 Millió Ft
9/B - lakás 48nm 84.0 Millió Ft

Tetőtér:
14-es lakás 117,17nm 204.75 Millió Ft
(ingatlan mérete: 76,11nm, terasz: 97nm)

15-ös lakás 97nm 169.746 Millió Ft
(ingatlan mérete: 77nm, terasz: 40 nm)

Lakás részletei

Ár: 84 000 000 Ft
Méret: 48 négyzetméter
Azonosító: 11539373
Cím: Rózsa utca
Városrész: Terézváros
Emelet: 2. emelet
Építőanyag: Kérdezzen rá a hirdetőtől »
Fűtés jellege: Hőszivattyú
Ingatlan állapota: Kérdezzen rá a hirdetőtől »
Komfort fokozat: Összkomfort
Építési év: Új építésű
Tulajdonviszony: Saját
Egész szobák: 1
Fél szobák: 2

Egyéb jellemzők

  • Klíma
  • Lift

Térkép


Így keressen budapesti ingatlant négy egyszerű lépésben. Csupán 2 perc, kötelezettségek nélkül!

Szűkítse a budapesti ingatlanok
listáját
Válassza ki a megfelelő
budapesti ingatlant
Írjon a hirdetőnek
Várjon a visszahívásra