Eladó lakás Budapest VI. ker 84 000 000 Ft

Leírás

MÉG PÁR LAKÁS ELÉRHETŐ!!!

A lakások jelenleg 99%-os készültségi szinten állnak. A használatbavételi engedélyezés folyamatban van. Az építésügyi hatóság engedélyét már megkapták. Az ingatlanok saját albetétként kerülnek bejegyzésre. A fűtésről hőszivattyús rendszer gondoskodik, padlófűtéssel és mennyezeti hűtés-fűtés megoldással. A lakásoknál közös előtér került kialakításra a szomszédos ingatlannal, amely kulturált, zárt, belső közlekedőként funkcionál. Az ingatlan újépítésűnek minősül, és úgynevezett resales konstrukcióban kerül értékesítésre. A szerződéskötés során a beruházó a vevő kijelölési jogát alkalmazza. A társasház teljes felújítása, külső-belső homlokzat megtörtént, lift kialakítása kész, udvar folyamatban, tervezés alatt.

Fizetési ütemezés:
85% a szerződéskötéskor (ebből 5% foglalóként)
15% a birtokbaadáskor esedékes.

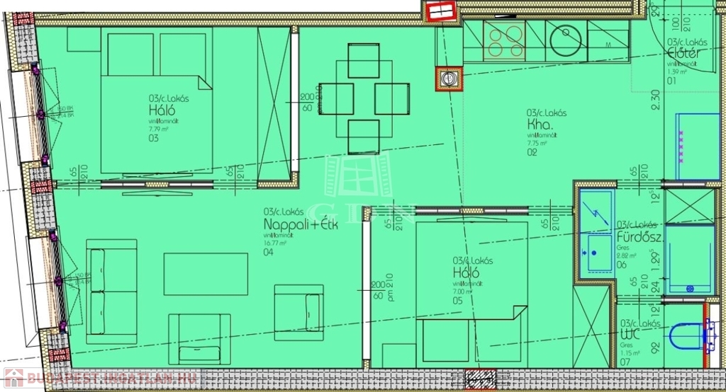
Lakás részletei

Ár: 84 000 000 Ft
Méret: 48 négyzetméter
Azonosító: 11557761
Irodai azonosító: 386211
Cím: Rózsa utca
Emelet: 2. emelet
Építőanyag: Tégla
Fűtés jellege: Hőszivattyú
Ingatlan állapota: Kitűnő
Komfort fokozat: Összkomfort
Építési év: Új építésű
Tulajdonviszony: Saját
Kilátás: utcai
Egész szobák: 2

Egyéb jellemzők

  • Erkély
  • Garázs
  • Lift
  • Pince
  • Tároló

Térkép


Így keressen budapesti ingatlant négy egyszerű lépésben. Csupán 2 perc, kötelezettségek nélkül!

Szűkítse a budapesti ingatlanok
listáját
Válassza ki a megfelelő
budapesti ingatlant
Írjon a hirdetőnek
Várjon a visszahívásra