Eladó lakás Budapest VI. ker 259 000 000 Ft

Leírás

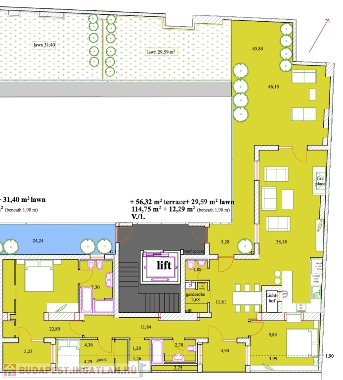
Folyamatosan bérbe adott lakás évi 6,6%-os megtérüléssel! Remek három háló szobás ingatlan 56m2 terasszal és kerttel és nettó 115m2 lakótérrel egy gyönyörű szecessziós épületben. Az elmúl 8 évben összesen 3 hónapig volt lakó nélkül az ingatlan! A lakás ára 259.000.000Ft
• ÉS MIÉRT ÉPP EZ A LEGMEGFELELŐBB VÁLASZTÁS?
• Kitűnő lokáció a Színháznegyed határán
• Remek közlekedési lehetőségek
• Őrzött mélygarázs
• Minden egyes lakás, intim, napsütéses terasszal rendelkezik
• Német precizitással és minőségi anyaghasználattal kivitelezett lakások
• Műemlék környezet egy igazi városi palotában
ELHELYEZKEDÉS:
Terézváros az egyik legsokszínűbb
Belvárosi kerület, a világ örökség részét képző
Andrássy út mellet számtalan nevezetesség és
látványosság található koncentráltan a
területen. Széles skálán mozognak a
kikapcsolódni vágyók lehetőségei a Városligeti
sport programoktól a szabadtéri kulturális
programokon át egészen a Magyar Állami
Operaházig. Legyen szó egy ebédről a Hajós
utcában vagy egy színházi előadással
egybekötött Liszt Ferenc téri vacsorával a
lehetőségek adottak. Sokszínű kulturális
intézmények, neves világ márkák és bevásárló
központok,
MEGKÖZELÍTHETŐSÉG
Fontos szempont volt a lakások akadálymentes megközelíthetősége, mely mára alap igény
minden korosztály számára így legyen szó babakocsiról vagy kerekes székről az utcaszintről
akadálymentesen megközelíthetőek az ingatlanok.
A biztonságos környezet szintén az elsődleges szempontok között szerepelnek a lakáskeresők
között, de mivel Terézváros Budapest legbiztonságosabb kerületei között van nyilván tartva
igazából a lakók komfort érzetét növeli, hogy az újonnan épült lakószintekre csak beléptető
kártya segítségével lehet bejutni a lifttel illetve lépcsőházból egyaránt
KÖZLEKEDÉS
A Teréz krt. közelségének köszönhetően pár perc alatt elérhető a 4-6 villamos vonal és a sárga
és kék metró. Ezen felül számtalan tömegközlekedési eszköz elérhető a vasút mellett.

Lakás részletei

Ár: 259 000 000 Ft
Méret: 121 négyzetméter
Azonosító: 11164701
Irodai azonosító: 346089
Cím: Eötvös utca
Erkély mérete: 86.00 négyzetméter
Emelet: 5. emelet
Építőanyag: Tégla
Fűtés jellege: Cirkó
Ingatlan állapota: Kitűnő
Komfort fokozat: Dupla komfort
Építési év: 11-20 éves
Tulajdonviszony: Saját
Kilátás: utcai
Egész szobák: 3
Fél szobák: 1

Egyéb jellemzők

  • Erkély
  • Garázs
  • Lift
  • Pince
  • Tároló
  • Kocsibeálló

Térkép


Így keressen budapesti ingatlant négy egyszerű lépésben. Csupán 2 perc, kötelezettségek nélkül!

Szűkítse a budapesti ingatlanok
listáját
Válassza ki a megfelelő
budapesti ingatlant
Írjon a hirdetőnek
Várjon a visszahívásra