Eladó lakás Budapest VI. ker 600 000 Euro

Leírás

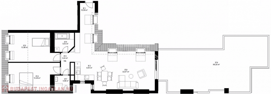
Nagymező utca közelében ajánljuk figyelmébe ezt az új építésű dupla komfortos, két hálószobás, nagy teraszos lakást. Az épület a beépítéssel párhuzamosan teljesen megújult, a lakás az ötödik emeleten található , a két hálószoba mellett két fürdőszoba került kialakításra. A lakás különlegessége a nappaliból nyíló 66m2-es terasz mely tavasztó őszig egy plusz szobát jelent. A lakás fűtése padlófűtés és gázkazán kombinációval lett megoldva mely a melegvizet is biztosítja.A hűtés split klímákkal megoldott, a konyha gépesített. A lakás jelenleg hosszú távra van bérbe adva 4,6% fizet évente a bérlő. Az elhelyezkedésének köszönhetően akár vagy rövidtávú bérbeadásra is tökéletes lehet.

Lakás részletei

Ár: 600 000 Euro
Méret: 133 négyzetméter
Azonosító: 11277366
Irodai azonosító: 274143
Cím: Broadway terasz
Emelet: 5. emelet
Építőanyag: Tégla
Fűtés jellege: Házközponti (egyedi mérővel)
Ingatlan állapota: Kitűnő
Komfort fokozat: Dupla komfort
Építési év: Új építésű
Tulajdonviszony: Saját
Kilátás: kertre néző
Egész szobák: 3

Egyéb jellemzők

  • Erkély
  • Garázs
  • Lift
  • Pince
  • Tároló

Térkép


Így keressen budapesti ingatlant négy egyszerű lépésben. Csupán 2 perc, kötelezettségek nélkül!

Szűkítse a budapesti ingatlanok
listáját
Válassza ki a megfelelő
budapesti ingatlant
Írjon a hirdetőnek
Várjon a visszahívásra