Eladó lakás Budapest V. ker 87 900 000 Ft

Leírás

Eladó lakás a Falk Miksa utcában Budapest V. kerület!

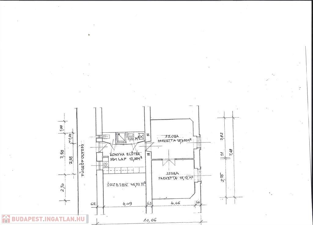
A hangulatos Falk Miksa utcában, pár percre a Parlamenttől, a Dunától és a Jászai Mari tértől, eladó egy 46 (46,7) nm-es, 1. emeleti, nappali + hálószobás, világos lakás. Az ingatlan egy belső, házak által határolt nagyobb udvarra néz.
A konyha teljesen gépesített, beépített bútorokkal, ablakos, mely a ház belső udvarára néz.
A fürdőszoba zuhanyzós, a meleg vizet gázvízmelegítő szolgáltatja, a WC pedig külön helyiségben van, ablakos.
Az otthon melegéről konvektor fűtés gondoskodik.

Ez a lakás ideális választás lehet fiataloknak, akik értékelik a belváros pezsgését, de akár az idősebb generációnak is remek otthont nyújt, aki szeretik, ha minden elérhető közelségben van vagy kulturális környezetre vágynak.

Az épület történelmi jelentőségű: 1913-ban épült szecessziós stílusban, 5 szintes, és lifttel is rendelkezik. A lépcsőház eleganciáját eredeti névtáblák, üvegablakok és díszes, réz díszítésű kapu teszi különlegessé.

A Falk Miksa utca maga is külön vonzerő: art-galériák, antikvitások, aukciós házak sora jellemzi valójában ez az utca városunk művészeti főutcája, amit Art & Antique Street-ként is ismernek.

Az utca fákkal szegélyezett, hangulatos és a Parlament is mindössze egy kellemes, rövid sétára található.

Érdekesség: itt található Peter Falk (Columbo) bronzszobra is, amely stílusosan jelenik meg az utcai élet részévé válva.

A közlekedés kiváló: a híres 2-es villamos, az éjjel-nappal járó 4-6-os villamos, valamint buszok és a Metro M2/M3 néhány percen belül elérhetők. A Margit-sziget közelsége pedig zöld kikapcsolódást biztosít nap mint nap.

Eladási irányár: 87,9 millió forint.

Érdeklődni:
+36 70 384 5302

Lakás részletei

Ár: 87 900 000 Ft
Méret: 46 négyzetméter
Azonosító: 11608201
Irodai azonosító: 12800
Cím: Falk Miksa utca
Rezsi: 24 540 Ft/hó
Emelet: 1. emelet
Építőanyag: Tégla
Fűtés jellege: Konvektoros
Ingatlan állapota:
Komfort fokozat: Összkomfort
Elhelyezkedés: Társasház
Tulajdonviszony: Saját
Bútorozott: Bútorozott
Kilátás: udvari
Egész szobák: 2
Nappalik: 1

Egyéb jellemzők

  • Erkély
  • Garázs
  • Klíma
  • Lift
  • Pince
  • Tároló
  • Kocsibeálló

Így keressen budapesti ingatlant négy egyszerű lépésben. Csupán 2 perc, kötelezettségek nélkül!

Szűkítse a budapesti ingatlanok
listáját
Válassza ki a megfelelő
budapesti ingatlant
Írjon a hirdetőnek
Várjon a visszahívásra