Eladó lakás Budapest V. ker 295 000 000 Ft

Leírás

Gellért heggyel szemben a Belgrád rakparton, egyik legpatinásabb, századfordulós neobarokk házban eladó egy különleges, két lakásra osztott ingatlan. Tökéletes befektetésnek, saját célra, akár két generáció részére.Használható egy lakásként, használati megosztással két külön ingatlanként is lehet kezelni. Minden mérő külön lett kialakítva.

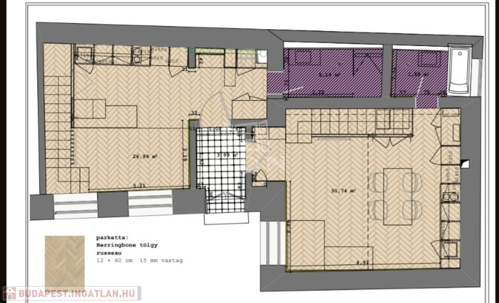
Ez a 104 m²-es, belső két szintes, galériás lakás a 13 m²-es teraszával /eredetileg Lichthof/ egyedülálló lehetőséget kínál a belvárosi élet és a csendes udvari elhelyezkedés kombinációját keresőknek.

**Scroll down for English version / Görgess le az angolért**

A helyről
✅ Kiváló elhelyezkedés: Belgrád rakpart, Duna közelsége.
✅ Panoráma: a házból kilépve azonnal elénk tárul a budai oldal látványa, a Gellért-hegy, a Szabadság-szobor, valamint az Erzsébet- és a Szabadság híd.
✅ Történelmi érték: az épületet 1899-ben Havel Lipót építette, Tőry Emil tervei alapján.
✅ Elismert: szerepel a budapest100 weboldalon.

A lakásról
✅ Csendes és világos: földszinti, belső udvarra néző.
✅ Tulajdoni lapon 92 m2: valóságban 104 m², belmagasság 4,80 m, galéria teljes értékű (felső szinten 220 cm).
✅ Két különálló lakás: akár két generációnak, vagy egy nagy lakás.

* mindkettő külön bejárattal, saját gépészettel és áramkörrel**
* saját konyhával és fürdőszobával**
* közös előszobatér 4 m²**
✅ Energiatakarékos fűtés: elektromos padlófűtés BOSCH rendszerrel, melegvíz ARISTON bojlerrel.
✅ Okos vezérlés: fűtés wifiről is szabályozható.
✅ Felújított nyílászárók: fa kétrétegű, új beépített alumínium ablakok.
✅ Teljesen gépesített konyhák: modern AEG készülékekkel.
✅ Minőségi fürdőszobák: GROHE és Villeroy & Boch szaniterekkel.
✅ Közös terasz: mindkét lakásból elérhető, felújított, 13 m²

Lakásméretek:

A lakás:33 m² + 18 m² galéria
B lakás:35 m² + 14 m² galéria
Közös előtér: 4 m²
Lichthof / terasz:13 m²

Mindkét lakás teljes értékű nappali–konyha, hálószoba és fürdőszoba elrendezéssel, ideális akár külön használatra vagy befektetésként.

Közlekedés:
✅ Metro: M3, M4
✅ Villamos: 2, 2B, 2M, 47, 49
✅ Busz: 15, 578E, 105, 108E, 110, 110E, 112, 115, 133E, 178

Parkolás:
✅ Díjmentes parkolás állandó lakosként
✅ Zárt parkolóház a Molnár utcában

--- English ---
Facing Gellért Hill on Belgrád Quay, in one of the most prestigious, turn-of-the-century neo-baroque buildings, a unique property divided into two apartments is for sale. Perfect as an investment, for personal use, or even for two generations. It can be used as a single apartment or managed as two separate units with shared usage. All meters have been separately installed.

This 104 m², two-level interior apartment with a gallery, featuring a 13 m² terrace /originally a Lichthof/, offers a unique opportunity for those seeking the combination of downtown living and a quiet courtyard location.


About the location
✅ Excellent location: Belgrád Quay, close to the Danube.
✅ Panorama: Step out of the building and enjoy the view of Buda, Gellért Hill, the Liberty Statue, and the Elisabeth and Liberty Bridges.
✅ Historical value: The building was constructed in 1899 by Lipót Havel, based on designs by Emil Tőry.
✅ Recognized: Featured on the budapest100 website.

About the apartment
✅ Quiet and bright: Ground floor, facing the inner courtyard.
✅ Property register shows 92 m²: In reality 104 m², ceiling height 4.80 m, gallery fully usable (upper level 220 cm).
✅ Two separate apartments: Suitable for two generations or as one large apartment.

Each with a separate entrance, individual utilities and electrical circuits**

Own kitchen and bathroom**
Shared entrance hall 4 m²**

✅ Energy-efficient heating: Electric underfloor heating with BOSCH system, hot water with ARISTON boiler.
✅ Smart control: Heating can be regulated via Wi-Fi.
✅ Renovated doors and windows: Wooden double-glass, new built-in aluminum windows.
✅ Fully equipped kitchens: Modern AEG appliances.
✅ High-quality bathrooms: GROHE and Villeroy & Boch fixtures.
✅ Shared terrace: Accessible from both apartments, renovated, 13 m²

Apartment sizes:

Apartment A: 33 m² + 18 m² gallery

Apartment B: 35 m² + 14 m² gallery

Shared entrance hall: 4 m²

Lichthof / terrace: 13 m²

Both apartments feature fully functional living room–kitchen, bedroom, and bathroom layouts, ideal for separate use or as an investment.

Transportation
✅ Metro: M3, M4
✅ Tram: 2, 2B, 2M, 47, 49
✅ Bus: 15, 578E, 105, 108E, 110, 110E, 112, 115, 133E, 178

Parking
✅ Free parking as a permanent resident
✅ Secured parking garage on Molnár Street

B.Zs.

Lakás részletei

Ár: 295 000 000 Ft
Méret: 92 négyzetméter
Azonosító: 11605437
Irodai azonosító: 393417
Cím: Belgrád rakpart
Emelet: Földszint
Építőanyag: Tégla
Fűtés jellege: Cirkó
Ingatlan állapota: Felújított
Komfort fokozat: Dupla komfort
Építési év: 50 évesnél régebbi
Tulajdonviszony: Saját
Kilátás: udvari
Egész szobák: 4
Fél szobák: 1

Egyéb jellemzők

  • Erkély
  • Garázs
  • Lift
  • Pince
  • Tároló

Térkép


Így keressen budapesti ingatlant négy egyszerű lépésben. Csupán 2 perc, kötelezettségek nélkül!

Szűkítse a budapesti ingatlanok
listáját
Válassza ki a megfelelő
budapesti ingatlant
Írjon a hirdetőnek
Várjon a visszahívásra