Eladó lakás Budapest V. ker 225 000 000 Ft

Leírás

Exkluzív polgári lakás ELADÓ a V. kerület szívében, a Vígszínház és a Jászai Mari tér közvetlen közelében!

Budapest egyik legelőkelőbb, legkeresettebb belvárosi részén kínálunk eladásra egy teljeskörűen felújított, azonnal költözhető, kifinomult ízléssel kialakított polgári lakást. A környék presztízse, a patinás épületek hangulata és a Duna-part közelsége együttesen teremtenek valóban kivételes életminőséget.

A lakás főbb jellemzői:
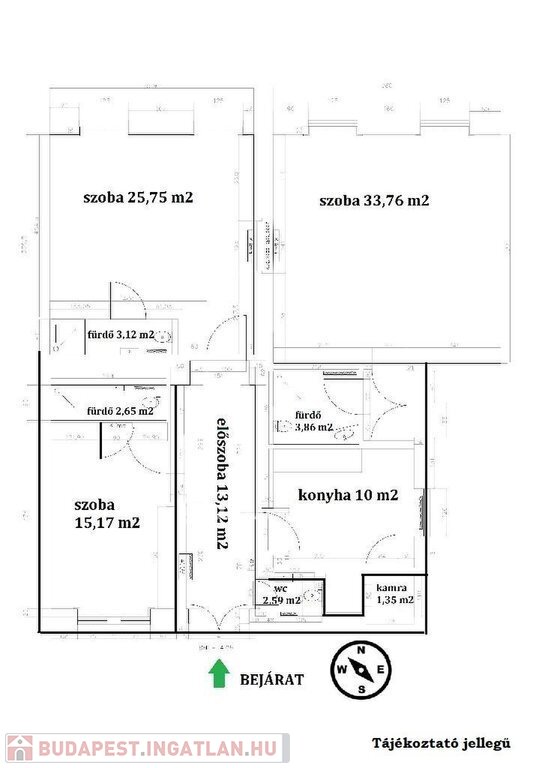
Tágas, nagyméretű szobák, mindegyikhez saját, külön bejáratú fürdőszoba és WC tartozik - ritkaságszámba menő luxus a belvárosban.

Elegáns étkezős konyha, modern gépesítéssel.

Külön kamra, mosógépkiállásokkal előkészítve.

2. emeleti elhelyezkedés, liftes, szépen karbantartott, klasszikus polgári társasházban.

Alacsony közös költség, rendezett lakóközösség.

A lakás minden részletében megújult, műszakilag és esztétikailag is magas színvonalon felújítva.

Kinek ajánljuk?
Nagycsaládosoknak, akik értékelik a 3 szobánkénti fürdőszoba adta kényelmet és a tágas szobákat.

Irodának, rendelőnek vagy reprezentatív vállalkozói térnek.

Befektetőknek, akik prémium színvonalú, azonnal bérbe adható ingatlant keresnek.

Miért különleges?
A lakás nem csupán egy ingatlan, hanem egy életstílus:
a Vígszínház eleganciája, a Jászai Mari tér pezsgése, a Duna-part közelsége, valamint a környék kifinomult, kulturált miliője mind hozzájárulnak ahhoz, hogy ez a lakás a belvárosi luxus egyik valódi gyöngyszeme legyen.

Az OTP Ingatlanpontnál nem csupán ingatlant kínálunk, teljes pénzügyi és jogi hátteret biztosítunk a vásárlás mögé.
Szakértő kollégáink segítenek a legkedvezőbb finanszírozási megoldások kiválasztásában, a hitelek és állami támogatások gördülékeny ügyintézésében, valamint díjmentes személyi bankár szolgáltatásunkkal végig kísérjük az egész folyamatot. Megbízható ügyvédi partnerrel dolgozunk, így a vásárlás minden lépése biztonságos és átlátható. Önnek csak annyi dolga marad, hogy beleszeressen a megfelelő otthonba.

Lakás részletei

Ár: 225 000 000 Ft
Méret: 111 négyzetméter
Azonosító: 11608603
Irodai azonosító: M325544-5185603
Emelet: 2. emelet
Építőanyag: Tégla
Fűtés jellege: Cirkó
Ingatlan állapota: Kitűnő
Komfort fokozat: Dupla komfort
Építési év: 50 évesnél régebbi
Kilátás: kertre néző
Egész szobák: 3

Egyéb jellemzők

  • Klíma
  • Lift

Térkép


Így keressen budapesti ingatlant négy egyszerű lépésben. Csupán 2 perc, kötelezettségek nélkül!

Szűkítse a budapesti ingatlanok
listáját
Válassza ki a megfelelő
budapesti ingatlant
Írjon a hirdetőnek
Várjon a visszahívásra