Eladó lakás Budapest V. ker 186 000 000 Ft

Leírás

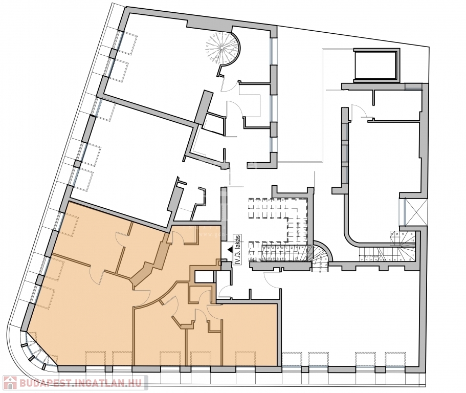
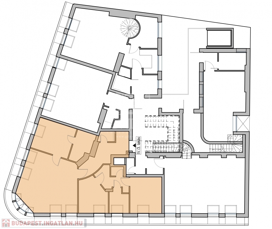
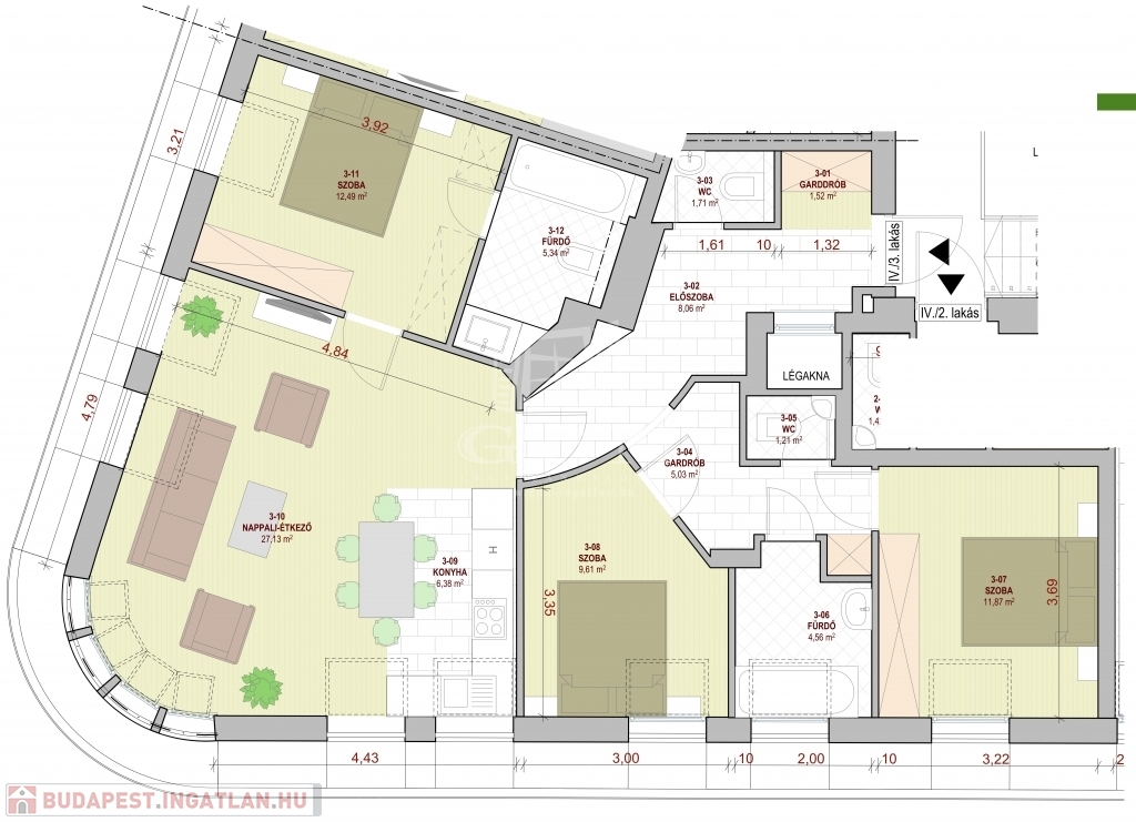
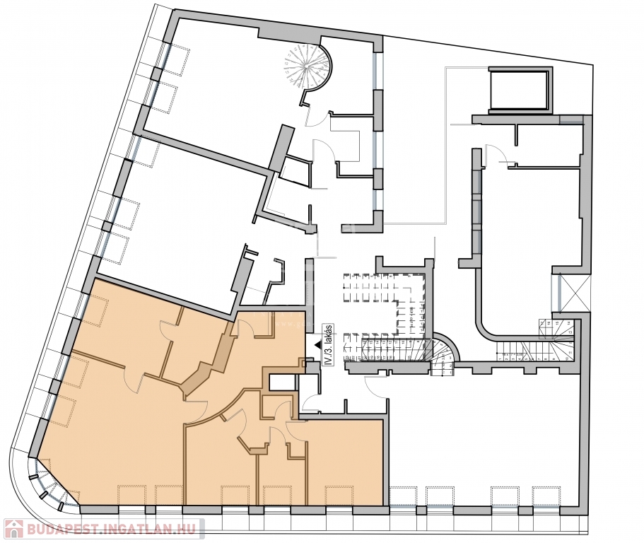
V. kerület Belvárosi részén, napfényes, magasemeleti luxus lakások kerülnek kialakításra a kivitelezéssel párhuzamosan pedig az épület korhűen megújul és egyidejűleg modern felvonó kerül beépítésre. Pazar sarok lakást köthet most le bevezető áron. Jelenlegi elképzelés szerint három hálószobával kerülne kialakításra, minden szoba utcai nézetű, az egyik fürdőszoba ráadásul ablakos, a többi vizes helyisége légtechnikával megoldott. A feltüntetett vételár a kulcsrakész állapotra vomatkozik konyhabútor nélkül. A mellékelt látványtervek csupán egy, a számtalan megvalósítható lehetőség közül, jelen stádiumban még 100%-ban lehetséges a leendő tulajdonosok elképzeléseinek megvalósítása.

• ÉS MIÉRT ÉPP EZ A LEGMEGFELELŐBB VÁLASZTÁS?
• Kitűnő lokáció a az ország legjobb egyetemei közelében
• Remek tömegközlekedési lehetőségek
• Őrzött mélygarázs a közelben
• Minden egyes lakás, intim, napsütötte terasszal rendelkezik
• Műemlék környezet a klasszikus Belvárosban
• Igény szerinti 100%-ban testre szabott lakások
• Igény esetén extra felszereltség a minőségi lakhatásért



Külön megbízás keretében a megvásárolt lakás teljes bútorozását és felszerelését vállaljuk a bérbeadással és utógondozással együtt így Önnek csak a bérleti díj beérkezését kell ellenőriznie.
Szükség esetén banksemleges hiteltanácsadással tudjuk segíteni a kiszemelt lakás megvásárlását.

Lakás részletei

Ár: 186 000 000 Ft
Méret: 93 négyzetméter
Azonosító: 11430935
Irodai azonosító: 277645
Cím: Belvárosi loft
Emelet: 4. emelet
Építőanyag: Tégla
Fűtés jellege: Cirkó
Ingatlan állapota: Kitűnő
Komfort fokozat: Összkomfort
Építési év: Új építésű
Tulajdonviszony: Saját
Kilátás: utcai
Egész szobák: 3
Fél szobák: 1

Egyéb jellemzők

  • Erkély
  • Garázs
  • Lift
  • Pince
  • Tároló

Térkép


Így keressen budapesti ingatlant négy egyszerű lépésben. Csupán 2 perc, kötelezettségek nélkül!

Szűkítse a budapesti ingatlanok
listáját
Válassza ki a megfelelő
budapesti ingatlant
Írjon a hirdetőnek
Várjon a visszahívásra