Eladó lakás Budapest IX. ker, Középső-Ferencváros, 98 000 000 Ft

Leírás

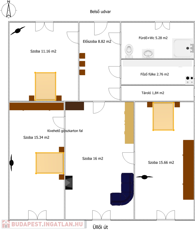
Eladó a IX. kerületben, az Üllői úton, a Klinikák és a Nagyvárad tér között egy második emeleti, 77 m2 ingatlan!
A lakás négy szobás, de az alaprajzon megjelölt gipszkarton kibontásával egy tágas nappalit nyerhetünk vissza.
A szobák méretei: 1.szoba: 11.16m2,
2.szoba: 15.34m2,
3.szoba: 16m2,
4.szoba: 15.66m2;

A fürdőszoba kivételével az egész lakás fel lett újítva két évvel ezelőtt.
A villanyhálózat, a burkolatok, a nyílászárók cserélve lettek. Álmennyezetbe szerelt világítás van az ingatlanba, így az eredeti 3.60m belmagasság 3 m-re csökkent. Ezzel a megoldással sokkal esztétikusabb lett ( szerelés tekintetében mindenképpen hasznos) és a fűtés-hűtés esetén kevesebb teret szükséges temperálni, amellett hogy a térérzet teljesen megmaradt.

A fűtés gázkonvektorral és villany fűtéssel megoldott.

Jelenleg rendelő-irodaként működik, így akár hasonló tevékenység a továbbiakban is működtethető.
Az ingatlan központi elhelyezkedéséből adódóan a közlekedés kiváló. A környéken bevásárlási lehetőségek, kisboltok, rendelő, óvodák, iskolák sétatávoságon belül elérhetőek, illetve a SOTE, a Nemzeti Közszolgálati Egyetem is.

Befektetésre vásárlás esetén, a környékbeli hasonló paraméterekkel rendelkező ingatlanok hosszú távú kiadás esetén megközelítőleg 330.000.-/hó + rezsi bérleti díjért adhatók ki, így öt éves szinten 19.800.000.- realizálható.

Bankfüggetlen hitelügyintézésben szakszerű segítséget tudunk nyújtani.
Az ingatlan előre egyeztetett időpontban tekinthető meg!

Lakás részletei

Ár: 98 000 000 Ft
Méret: 77 négyzetméter
Azonosító: 11520969
Cím: Üllői út
Városrész: Középső-Ferencváros
Rezsi: 30 000 Ft/hó
Emelet: 2. emelet
Építőanyag: Tégla
Fűtés jellege: Egyéb
Ingatlan állapota: Felújított
Komfort fokozat: Összkomfort
Építési év: 21-50 éves
Elhelyezkedés: Társasház
Tulajdonviszony: Saját
Kilátás: utcai
Kert: Nincs
Egész szobák: 4

Egyéb jellemzők

  • Erkély
  • Garázs
  • Klíma
  • Lift
  • Pince
  • Kertkapcsolat
  • Tároló
  • Kocsibeálló

Térkép


Így keressen budapesti ingatlant négy egyszerű lépésben. Csupán 2 perc, kötelezettségek nélkül!

Szűkítse a budapesti ingatlanok
listáját
Válassza ki a megfelelő
budapesti ingatlant
Írjon a hirdetőnek
Várjon a visszahívásra