Eladó lakás Budapest IX. ker 97 500 000 Ft

Leírás

Fiatalos, nagy teraszos, amerikai konyhás lakás a Haller Park mellett – remek választás első otthonnak

A 2000-es években épült, modern társasház 5. emeletén kínálunk eladásra egy világos, nyugati tájolású, nagy teraszos otthont, amely tökéletesen megfelel az OtthonStart program feltételeinek is.

Lokáció & közlekedés:
A ház közvetlen kijárattal rendelkezik a Haller Parkra, ahol naponta élvezheted a zöld környezetet. A társasház előtt és mellett villamosmegálló található, a metró és a Lurdy Ház pedig mindössze pár perc sétára van – így a város bármely pontja gyorsan elérhető.

A társasház szolgáltatásai:

Tágas, kényelmes lift
Portaszolgálat
Biciklitároló
Számzáras kapunyitó és kaputelefon
Biztonsági bejárati ajtó a lakásban

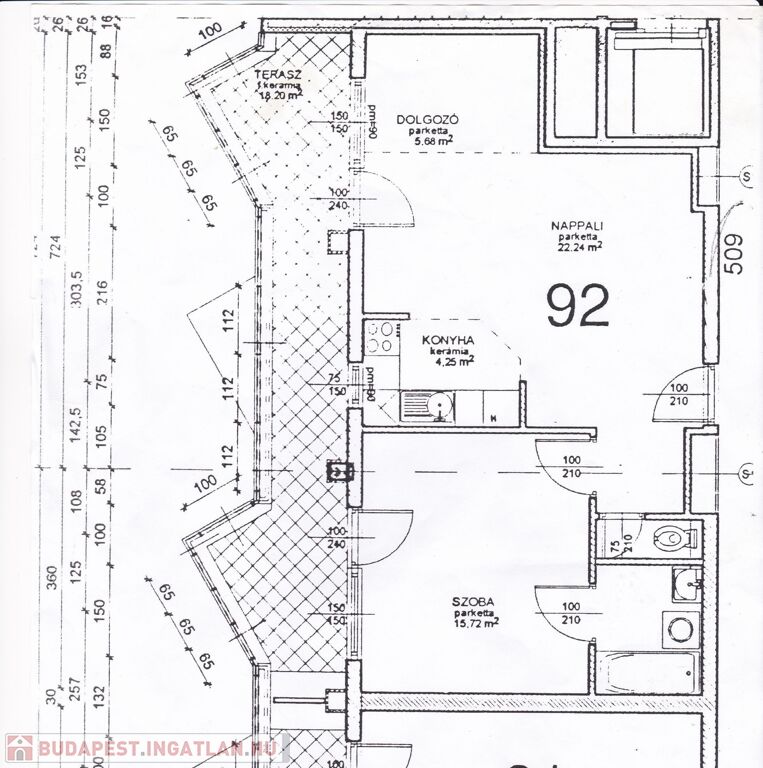
A lakás elrendezése:

Előtér
Tágas, napfényes amerikai konyhás nappali
Nagy hálószoba, közvetlen teraszkapcsolattal
Külön fürdőszoba és WC
A nappali mellett egy leválasztható dolgozó-/hálórész, ami tökéletes home office-hoz

A lakás teljes hosszában futó nagy terasz igazi extra: grillezéshez, beszélgetésekhez és pihenéshez kiváló. A belső kertre néz, két napellenző gondoskodik a kellemes árnyékról.

Felszereltség:

Légkondicionáló a nappaliban és a hálóban
Teljesen gépesített, egyedi tervezésű konyha (hűtő, mosogatógép, főzőlap, sütő, mikró)
Internet és kábel TV bekötve
Fürdőben mosógép

Parkolás:
Teremgarázsban bérelhető vagy vásárolható parkolóhely. A környéken fizető övezet található.

Lakás részletei

Ár: 97 500 000 Ft
Méret: 62 négyzetméter
Azonosító: 11584307
Emelet: 5. emelet
Építőanyag: Tégla
Fűtés jellege: Központi (egyedi mérővel)
Ingatlan állapota:
Építési év: 11-20 éves
Bútorozott: Bútorozott
Kilátás: kertre néző
Egész szobák: 2

Egyéb jellemzők

  • Erkély
  • Garázs
  • Klíma
  • Lift
  • Kertkapcsolat

Így keressen budapesti ingatlant négy egyszerű lépésben. Csupán 2 perc, kötelezettségek nélkül!

Szűkítse a budapesti ingatlanok
listáját
Válassza ki a megfelelő
budapesti ingatlant
Írjon a hirdetőnek
Várjon a visszahívásra