Eladó lakás Budapest IX. ker 97 500 000 Ft

Leírás

IX. kerületben, SÉTÁLÓUTCA MELLETT, nyugodt, csendes helyen kínálok eladásra az Angyal utcában egy ÚJSZERŰ, 60 m2-es,
2 szobás, gyönyörű napfényes ingatlant.

A társasház 2002-ben épült, lakói tisztán és rendezetten tartják a házat. Közös költsége 15.700 Ft , vízórája van, fűtését házközpont kazán biztosítja egyedi méréssel.

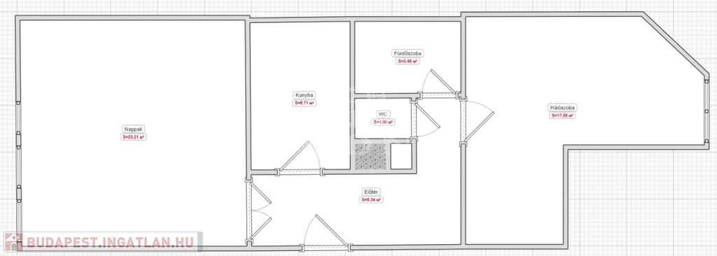
Az ingatlan a 6-ik emeleten helyezkedik el, és nagyon jó az elosztása; két külön nyíló szobája van, konyha, fürdőszoba, és mellékhelyiség.

Ideális választás befektetőknek vagy első lakást keresőknek.

Tartozik továbbá a lakáshoz egy saját zárású tároló (~4 nm) ,ez kötelezően jár a lakáshoz plusz 3.000.000 Ft,
illetve a -1-en található egy gépkocsibeálló, ez opcionálisan megvásárolható; ennek az értéke: 10.000.000 Ft.

Az ingatlan nagyon jó helyen van, kávézók, éttermek, pékségek, boltok színesítik az ideköltöző életét.

Tehermentes, azonnal költözhető.

Jöjjön el, nézze meg és tegyen ajánlatot!

INGYENES hitel tanácsadás!
BANKFÜGGETLEN hitelcentrumunk minden elérhető bank és hitelintézet ajánlatát versenyezteti az Ön kedvéért, ráadásul DÍJMENTESEN.

ID:390130

Lakás részletei

Ár: 97 500 000 Ft
Méret: 60 négyzetméter
Azonosító: 11608104
Irodai azonosító: 394049
Cím: Angyal utca
Emelet: 6. emelet
Építőanyag: Tégla
Fűtés jellege: Házközponti (egyedi mérővel)
Ingatlan állapota: Kitűnő
Komfort fokozat: Összkomfort
Építési év: 21-50 éves
Tulajdonviszony: Saját
Kilátás: utcai
Egész szobák: 2

Egyéb jellemzők

  • Erkély
  • Garázs
  • Lift
  • Pince
  • Tároló

Térkép


Így keressen budapesti ingatlant négy egyszerű lépésben. Csupán 2 perc, kötelezettségek nélkül!

Szűkítse a budapesti ingatlanok
listáját
Válassza ki a megfelelő
budapesti ingatlant
Írjon a hirdetőnek
Várjon a visszahívásra