Eladó lakás Budapest IX. ker 97 500 000 Ft

Leírás

IX. kerületben, SÉTÁLÓUTCA MELLETT, nyugodt, csendes helyen kínálok eladásra az Angyal utcában egy ÚJSZERŰ, 60 nm-es,
2 szobás, gyönyörű napfényes ingatlant, saját külön zárású tárolóval és egy gépkocsibeállóval!

A társasház 2002-ben épült, lakói tisztán és rendezetten tartják a házat. Közös költsége 15.700 Ft , vízórája van, fűtését házközpont kazán biztosítja egyedi méréssel.

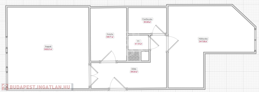
Az ingatlan a 6-ik emeleten helyezkedik el, és nagyon jó az elosztása; két külön nyíló szobája van, konyha, fürdőszoba, és mellékhelyiség.

Ideális választás befektetőknek vagy első lakást keresőknek.

Tartozik továbbá a lakáshoz egy saját zárású tároló (~4 nm) ,ez kötelezően jár a lakáshoz plusz 3.000.000 Ft,
illetve a -1-en található egy gépkocsibeálló, ez opcionálisan megvásárolható; ennek az értéke: 10.000.000 Ft.

Az ingatlan nagyon jó helyen van, kávézók, éttermek, pékségek, boltok színesítik az ideköltöző életét.

Tehermentes, azonnal költözhető.
A tájékoztatás nem teljeskörű, további információért kérem keressen az alábbi
referencia azonosítón:
ID:390130

Lakás részletei

Ár: 97 500 000 Ft
Méret: 60 négyzetméter
Azonosító: 11582328
Irodai azonosító: 390130
Cím: Angyal utca
Emelet: 6. emelet
Építőanyag: Tégla
Fűtés jellege: Házközponti (egyedi mérővel)
Ingatlan állapota: Kitűnő
Komfort fokozat: Összkomfort
Építési év: 21-50 éves
Tulajdonviszony: Saját
Kilátás: utcai
Egész szobák: 2

Egyéb jellemzők

  • Erkély
  • Garázs
  • Lift
  • Pince
  • Tároló

Térkép


Így keressen budapesti ingatlant négy egyszerű lépésben. Csupán 2 perc, kötelezettségek nélkül!

Szűkítse a budapesti ingatlanok
listáját
Válassza ki a megfelelő
budapesti ingatlant
Írjon a hirdetőnek
Várjon a visszahívásra