Eladó lakás Budapest IX. ker 125 000 000 Ft

Leírás

Belvárosi befektetés!

Figyelem: az ingatlan jelenleg hosszú távra bérbe lett adva, így a vásárlás kizárólagos feltétele a jól fizető bérlő megtartása!! A bérleti díj 301.000 Ft/hó + rezsi. A bérleti szerződés 2024.08 01- től minimum 2 év, de opcionálisan akár 5 év időtartamra szól.

Reprezentatív főtér, sétáló utca, kávézók, éttermek, nos tulajdonosként ez a környezet fogadja minden érkezésnél és távozásnál.
A gondos közös képviseletnek köszönhetően a társasház folyamatosan karbantartott. A KEDVEZŐ KÖZÖS KÖLTSÉG-be épített tartalékképzésnek köszönhetően a ház jelentős megtakarítással rendelkezik!

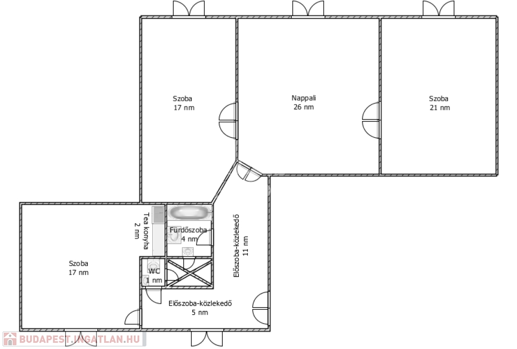
A 107 négyzetméter alapterületű ingatlan, hatalmas nappalijával és a 3 nagyméretű szobájával jelenleg iskolaként funkcionál.

Figyelem: a társasház rendelkezik egy elvi hozzájárulással, melynek értelmében a jelenlegi lépcsőházi bejárattól függetlenül egy másik - az utcafront felé közvetlen - bejárat is nyithat! Ily módon az ingatlan bármely utcaportálos szolgáltatás üzemeltetésére, illetve cég székhelyként is optimális lehet.

Lakás jellemzői:
- műanyag (2 rétegű) nyílászárók + redőnyök,
- kombi-cirkó kazán,
- hatalmas terek,
- beköltözhető állapot,
- kedvező (18.000Ft) közös költség,
- utcafronti bejárat kialakításának lehetősége.

Lakás részletei

Ár: 125 000 000 Ft
Méret: 108 négyzetméter
Azonosító: 11398521
Irodai azonosító: 369668
Cím: Bakáts tér
Emelet: Földszint
Építőanyag: Tégla
Fűtés jellege: Cirkó
Ingatlan állapota:
Komfort fokozat: Összkomfort
Építési év: 50 évesnél régebbi
Tulajdonviszony: Saját
Kilátás: utcai
Egész szobák: 4

Egyéb jellemzők

  • Erkély
  • Garázs
  • Lift
  • Pince
  • Tároló

Térkép


Így keressen budapesti ingatlant négy egyszerű lépésben. Csupán 2 perc, kötelezettségek nélkül!

Szűkítse a budapesti ingatlanok
listáját
Válassza ki a megfelelő
budapesti ingatlant
Írjon a hirdetőnek
Várjon a visszahívásra