Eladó lakás Budapest IV. ker 99 800 000 Ft

Leírás


Eladó a 4. kerületben, Újpesten egy szinte új, 2023-ban átadott, kertkapcsolatos, kitűnő állapotú, földszinti, HŐSZIVATTYÚS, rendezett gazdasági viszonyokkal rendelkező társasházban lévő, 3 szobás, teraszos, 68 m2 -es, téglalakás. A lakás nagyon jó elosztású, szellős, világos terekkel, három teljes értékű szobával. Az ingatlan házközponti fűtéses, egyedi mérőórával van ellátva, mint ahogy a többi közmű is külön mérőórával rendelkezik. Az ingatlan fűtéséről és hűtéséről egy innovatív levegő-víz hőszivattyú gondoskodik, így télen, nyáron egyöntetűen kellemes a hőmérséklet. Mindezt egy NGBS Icon vezérlővel irányíthatjuk, akár telefonról is, mely akár egy okosotthon rendszerbe is integrálható.

 A hőszivattyú a mennyezeten és a padlón fűt, míg a nyári melegben a mennyezeten keresztül hűti a lakást, így klímára egyáltalán nincs szükség.

 

A használati melegvíz ellátását is a hőszivattyúra bízták.

 

Az ingatlan téglából épült, 20 cm-es külső szigeteléssel, a hőszivattyú H tarifáról üzemel, valamint három rétegű nyílászárókkal rendelkezik, így a rezsi költségek nagyon kedvezőnek mondhatóak. A nyílászárók elektromos redőnnyel és szúnyoghálóval vannak ellátva.

 

A lakás nyugati fekvésű és a hátsó, belső udvarra néző, ezért kimondottan csendesnek mondható.

Az udvari parkolást egy elektromos kapu könnyíti meg, melyet akár telefonról is vezérelhetünk.

 

A lakás vételárát képezik a beépített bútorok, melyek igen jó állapotúak.

A konyhabútor gépesített.

A lakás több ponton záródó biztonsági ajtóval rendelkezik.

 

A lakásnak NINCSENEK oldalsó szomszédai:-)

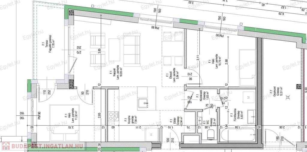
Ehhez feltöltöttem egy komplett földszinti alaprajzot is.

 

A lépcsőház folyamatosan karbantartott.

A lakáshoz megvásárolandó dupla gépjárműbeálló és 4,5 nm-es tároló tartozik.

Az áruk 10 m Ft.

 

Helyiségek:

- Nappali

- Konyha

- Étkező

- Hálószoba

- Hálószoba

- Fürdőszoba

- Közlekedő

- WC

- Előszoba

- Terasz

 

A lakás frekventált helyen található, így a közelében bevásárlási lehetőségek és szociális intézmények egyaránt megtalálhatóak.

Közlekedése kitűnő, busszal a centrum rövid idő alatt megközelíthető.

Az M0-ás autópálya 3 perc alatt elérhető.

Az ingatlan biztonságos és nyugodt környéken található.

 

Hitel, CSOK igénylésben díjmentes ügyintézéssel állunk rendelkezésére! Nálunk kiválaszthatja az Ön számára legkedvezőbb ajánlatot.

 

Várom megtisztelő érdeklődésüket.

 

Lakás részletei

Ár: 99 800 000 Ft
Méret: 68 négyzetméter
Azonosító: 11580073
Irodai azonosító: 209002067
Építőanyag: Tégla
Ingatlan állapota: Kitűnő
Komfort fokozat: Összkomfort
Egész szobák: 3

Egyéb jellemzők

  • Lift

Így keressen budapesti ingatlant négy egyszerű lépésben. Csupán 2 perc, kötelezettségek nélkül!

Szűkítse a budapesti ingatlanok
listáját
Válassza ki a megfelelő
budapesti ingatlant
Írjon a hirdetőnek
Várjon a visszahívásra