Eladó lakás Budapest III. ker 64 000 000 Ft

Leírás

ENERGIATAKARÉKOS, PRÉMIUM LAKÁSOK TESTVÉRHEGY LÁBÁNÁL***Az építkezés elkezdődött, a szerkezetépítés hamarosan befejeződik*****CSOK, ÁFA visszaigénylés, illetékkedvezmény igénybe vehető***NAGYON JÓ ÁR/ÉRTÉK ARÁNY*A III. kerületben Óbuda hegyvidékén, a Testvérhegy lábánál épül ez a nívós, 12 lakásos, energiatakarékos társasház. Különlegessége az, hogy a zöldövezetben van, de mégis könnyen elérni a várost, akár tömegközlekedéssel, akár autóval.Az ingatlanfejlesztő tulajdonos az elmúlt 20 évben 471 db lakást épített Budapesten és vidéki nagyvárosokban. Transzparens, munkájára igényes, önerőből építő cég. A kivitelezés során a minőségi anyagfelhasználás és az energiatakarékosság kiemelt szempont, hogy időtálló, gazdaságosan üzemeltethető otthonokat hozzanak létre.A négyszintes épületben a -1 szinten lesznek a teremgarázsok, tárolók, illetve kerékpártárolók. Innen indul a 8 személyes lift a lakószintekre. A földszinten, az 1. és a 2. emeleten szintenként négy lakás, míg a 3. emeleten egy nagyteraszos lakás kerül kialakításra. A lakástípusokhoz nagy, élhető terasz kapcsolódik, a földszinti lakásokhoz pedig saját kert is tartozik. A lakásokhoz teremgarázshely (+6 MFt) és tároló (+2-3 MFt) vásárolhatóINGATLANOK MÉRETE45.08-98.04 NMSZOBÁK2-3-4 SZOBATERASZOK10-81 NM közöttÁRFEKVÉS63-149 MFTJELLEMZŐK- 15 cm külső hőszigetelés- 25 cm-es hangátló lakáselválasztó falak- hőszigetelt háromrétegű ablakok- kiépített redőnytokok, melyek motoros redőnyök fogadására is alkalmasak- több ponton záródó bejárati ajtók- mennyezet hűtés/fűtés, hőszivattyús levegő-víz fűtő/hűtő rendszerrel- hidegburkolatok alatt padlófűtés a konyhában, fürdőkben- harmatpontérzékelővel ellátott digitális, internetről vezérelhető termosztátok helyiségenként- hidegburkolatok, parketta, szaniterek, beltéri ajtók választhatók- kaputelefon, riasztó előkészítés- füvesített, növényekkel beültetett, kertÁTADÁS: 2024. decemberA részletekkel kapcsolatban várom jelentkezését! Hívjon, akár hétvégén is!

64000000 Ft

Referencia szám: PR068681/LK/18924

Lakás részletei

Ár: 64 000 000 Ft
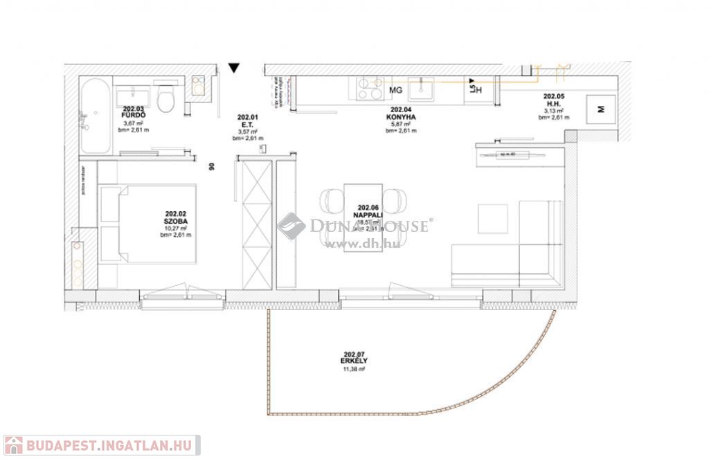
Méret: 50 négyzetméter
Azonosító: 11305044
Irodai azonosító: PR068681/LK/18924-4505526
Cím: Budapest 3. ker.i 50 nm-es lakás eladó
Emelet: 2. emelet
Építőanyag: Tégla
Fűtés jellege: Cirkó
Ingatlan állapota: Épülő
Építési év: Új építésű
Egész szobák: 2

Egyéb jellemzők

  • Lift

Térkép


Így keressen budapesti ingatlant négy egyszerű lépésben. Csupán 2 perc, kötelezettségek nélkül!

Szűkítse a budapesti ingatlanok
listáját
Válassza ki a megfelelő
budapesti ingatlant
Írjon a hirdetőnek
Várjon a visszahívásra