Eladó lakás Budapest II. ker 8 650 000 000 Ft

Leírás

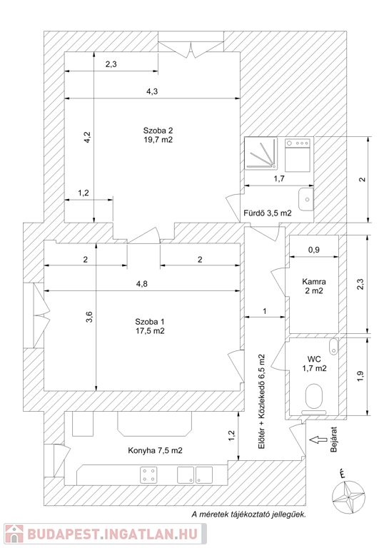
Eladó 59 nm-es, első emeleti lakás a Városmajor közelében, kiváló közlekedéssel, természetközeli elhelyezkedéssel.

Főbb jellemzők:
• 2 külön nyíló szoba, fürdőszoba, konyha, kamra, mosdó
• egész nap világos
• fekvés nem utcafronti
• zöldre néző kilátás (Svábhegy)
• északi hálószoba zöldterületre néz
• közvetlen napsütés délutántól napnyugtáig
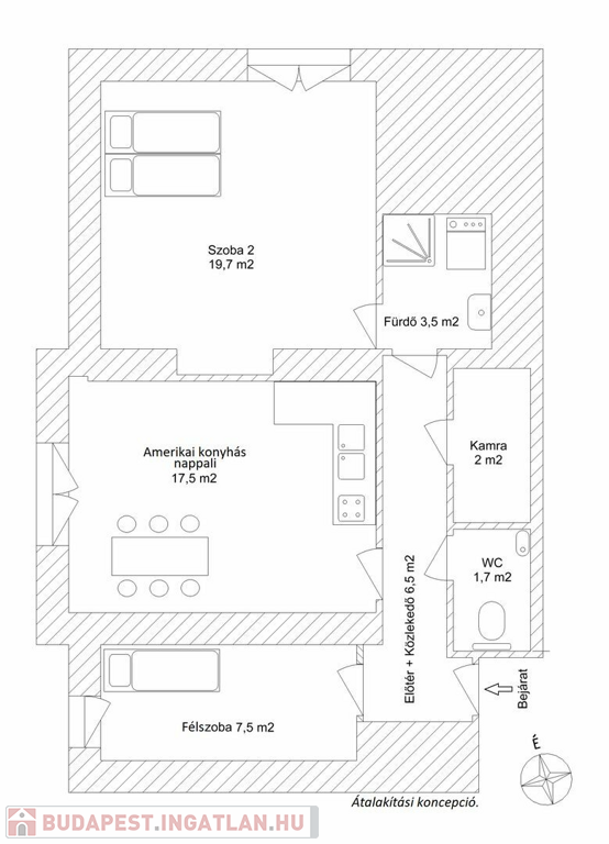
• galériázható (+12nm)

Felújítás (2014) és állapot:
• felújított konyha, fürdő, mosdó, kamra, előtér
• teljes villamoshálózat csere
• vízvezetékek cseréje
• új külső nyílászárók és bejárati ajtó
• folyamatosan karbantartott állapot
• különösebb ráfordítás nélkül költözhető

Társasház és parkolás:
• rendezett, megtakarítással rendelkező ház
• segítőkész lakóközösség
• karbantartott közös terek
• házközponti fűtés (korszerűsítve 2018-ban)
• parkolás: éves engedéllyel kedvező áron
• közös használatú autóbeálló
• kerékpár tárolási lehetőség az udvaron
• közös költség 34.000.- (4 főre számolva)

Környék:
• Városmajor park karnyújtásnyira
• gyors elérés a belvárosba
• természet és kirándulóhelyek a közelben
• üzletek, vendéglátás, sportolási lehetőségek

Ideális otthon azoknak, akik a városi kényelmet, a természet közelségét vagy a kettő egyensúlyát keresik. További információkért keressen bizalommal!

Lakás részletei

Ár: 8 650 000 000 Ft
Méret: 59 négyzetméter
Azonosító: 11612179
Cím: Szilágyi Erzsébet fasor
Rezsi: 2 300 000 Ft/hó
Emelet: 1. emelet
Építőanyag: Tégla
Fűtés jellege: Házközponti
Ingatlan állapota:
Komfort fokozat: Összkomfort
Építési év: 50 évesnél régebbi
Elhelyezkedés: Társasház
Tulajdonviszony: Saját
Bútorozott: Részben bútorozott
Kilátás: udvari
Egész szobák: 2

Egyéb jellemzők

  • Erkély
  • Garázs
  • Klíma
  • Lift
  • Pince
  • Kertkapcsolat
  • Kocsibeálló

Így keressen budapesti ingatlant négy egyszerű lépésben. Csupán 2 perc, kötelezettségek nélkül!

Szűkítse a budapesti ingatlanok
listáját
Válassza ki a megfelelő
budapesti ingatlant
Írjon a hirdetőnek
Várjon a visszahívásra