Eladó lakás Budapest II. ker 189 000 000 Ft

Leírás


Ritka lehetőség a Széna téren: prémium rendelő / magánegészségügyi szolgáltató helyiség eladó! Eladó Budapest II. kerületének egyik legértékesebb részén, a Széna téren, egy teljes körűen felújított, 91 m²-es prémium ingatlan, amelyet kifejezetten magánegészségügyi vagy szépségipari szolgáltatások céljára

alakítottak ki.



Az ingatlan egy patinás, LIFTES társasház első emeletén található.



AZONNAL KÖLTÖZHETŐ, teljes műszaki felszereltséggel, így ideális választás orvosi rendelő, fogászat, esztétikai klinika, gyógytorna, pszichológiai praxis vagy más prémium szolgáltatás számára.



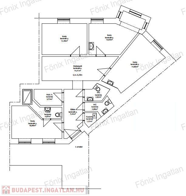
Helyiségek elosztása:

- 4 különálló, világos kezelőhelyiség (az egyik saját fürdőszobával)

- tágas, ügyfélbarát váróterem

- teljesen felszerelt személyzeti konyha

- 2 különálló mosdó (egyik akadálymentesítési lehetőséggel)

- gépészeti sarok



Műszaki tartalom:

- egyedi mérőórák minden helyiségben

- modern Viessmann kazán

- klimatizált helyiségek

- 3 rétegű hő- és hangszigetelt ablakok

- nagy sávszélességű internetkapcsolat



Ez az ingatlan nem csupán egy rendelő, hanem egy kész üzleti lehetőség.

Kialakítása révén azonnal hasznosítható egészségügyi szolgáltató központként.

 

A lokáció prémium presztízst biztosít a bérlők és páciensek számára.

 

Kiváló bérbeadási potenciál, magas éves hozammal.

 

Környékről:

 

Budapest egyik legfrekventáltabb közlekedési csomópontja

Villamos- és buszmegállók közvetlen közelben. M2 metró megálló 1 percre.

Mammut bevásárlóközpont, Millenáris Park, Budai Vár pár perc sétára.



***



Rare Opportunity at Széna Square: Premium Medical / Private Healthcare

Facility for Sale!



For sale in one of the most prestigious locations of Budapest’s District

II, at Széna Square, a fully renovated 91 m² premium property,

specifically designed for private healthcare or beauty industry

services.



The property is located on the first floor of an elegant,

elevator-equipped building, move-in ready with full technical equipment,

making it an ideal choice for a medical practice, dental clinic,

aesthetic clinic, physiotherapy, psychological practice, or other

premium service provider. The fully equipped kitchen is not part of the

purchase price, it is to be acquired for an additional 8 Million HUF.



Layout:



4 bright, separate treatment rooms (one with private en-suite bathroom)

spacious, client-friendly waiting room

fully equipped staff kitchen

2 separate restrooms (one with accessibility option)

technical/service corner

Technical features:



individual utility meters in every room

modern Viessmann boiler

air-conditioned rooms

triple-glazed, sound- and heat-insulated windows

high-speed internet connection

This property is not just a medical practice, but a ready-to-use

business opportunity. Thanks to its professional design, it can be

immediately utilized as a private healthcare center. Its premium

location provides both prestige and convenience for tenants and patients

alike, offering excellent rental potential with attractive annual yield.



Prime location – Széna Square:



One of Budapest’s busiest transportation hubs

Tram and bus stops within walking distance

Mammut Shopping Mall, Millenáris Park and Buda Castle just a few minutes

away

Lakás részletei

Ár: 189 000 000 Ft
Méret: 91 négyzetméter
Azonosító: 11605276
Irodai azonosító: 705100467
Emelet: 1. emelet
Építőanyag: Tégla
Ingatlan állapota: Felújított
Komfort fokozat: Összkomfort
Egész szobák: 4

Egyéb jellemzők

  • Lift

Így keressen budapesti ingatlant négy egyszerű lépésben. Csupán 2 perc, kötelezettségek nélkül!

Szűkítse a budapesti ingatlanok
listáját
Válassza ki a megfelelő
budapesti ingatlant
Írjon a hirdetőnek
Várjon a visszahívásra