Eladó lakás Budapest II. ker 120 000 000 Ft

Leírás

Exkluzív, luxus otthon panorámával a II. kerületben!



Kivételes otthon zöldövezetben! Tájvédelmi terület szomszédságában, csendes, természetközeli, mégis kiválóan megközelíthető helyen kínáljuk ezt az exkluzív, nagy alapterületű lakást, mely ideális otthont nyújt akár nagyobb családoknak is. Kompromisszummentes minőséget, nyugalmat és eleganciát kínál. Az örökpanorámás, déli tájolású ingatlan mindkét lakása eladó.



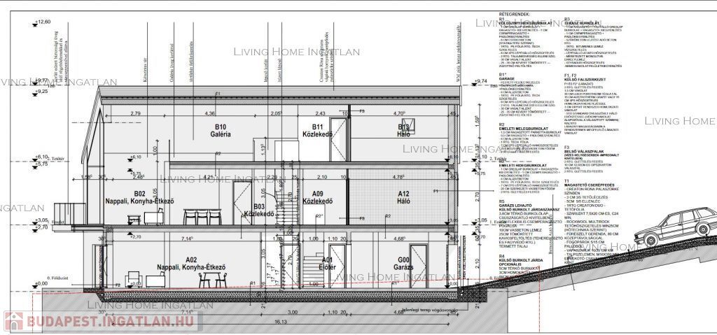
Az épület jelenleg 60%-os készültségű szinten áll, ilyen állapotban az ára 120 millió Ft. Kulcsrakész állapotban a földszinti lakás 190 millió Ft, az emeleti 214,9 millió Ft.



A belső terek, a beosztás még alakítható, a burkolatokat a vevő a saját ízlése szerint még kiválaszthatja, így az otthon valóban személyre szabott luxusélettérré válhat.



Az földszinti lakás 146 nm, az emeleti 152 nm, mindkettőhöz kizárólagos kerthasználat tartozik, valamint garázs.



A déli tájolású nappali és a nagyméretű üvegfelületek páratlan fényviszonyokat és örökpanorámát biztosítanak, amely a nap minden szakában különleges atmoszférát teremt.



További extrák a teljesség igénye nélkül:



-prémium műszaki tartalom, alacsony fenntartási költség,



-fűtés: levegő-hőszivattyús rendszer, mennyezeti hűtés, padlófűtés,



-tetőtér: fan coil,



-Hörmann garázskapu,



-klíma, kiépített kaputelefon, riasztó-rendszer,



-egyedi beltéri nyílászárók, üvegkorlát, letisztult, modern architektúra,



-elektromos alumínium redőny és szúnyogháló,



-nagy belmagasság.



Részletes dokumentációt, tervet, műszaki tartalmat kérésre küldök.



A lokáció kedvező: közelben Francia iskola, Német iskola, Amerikai iskola, Spanyol iskola, sportolási lehetőség, uszoda.



Ez az ingatlan ideális választás lehet nagycsaládosoknak, vagy értékálló luxusingatlant kereső befektetőknek.



Ha a hirdetés felkeltette érdeklődését, kérem, keressen akár hétvégén is.



Az alaprajz és az adatok tájékoztató jellegűek.



English:



Exclusive, luxurious home with panoramic views in District II!



An exceptional home in a green area! We are offering this exclusive, large apartment in a quiet, natural setting close to a nature reserve, yet with excellent transport links. It is ideal for larger families. It offers uncompromising quality, tranquility, and elegance. Both apartments of this south-facing property with eternal panoramic views are for sale. 

The building is currently 60% complete, and in this condition, the price is HUF 120 million. In turnkey condition, the ground floor apartment is priced at HUF 190 million and the upstairs apartment at HUF 214.9 million.

The interior spaces and layout can still be modified, and the buyer can choose the finishes according to their own taste, so the home can truly become a personalized luxury living space.

The ground floor apartment is 146 sqm, the upstairs apartment is 152 sqm, both with exclusive use of the garden and a garage.

The south-facing living room and large glass surfaces provide unparalleled lighting conditions and a panoramic view, creating a special atmosphere at all times of the day. 



Additional extras include, but are not limited to:



-premium technical features, low maintenance costs,

-heating: air source heat pump system, ceiling cooling, underfloor heating,

-attic: fan coil,

-Hörmann garage door,

-air conditioning, built-in intercom, alarm system,

-unique interior doors and windows, glass railing, clean, modern architecture,

-high ceilings.

Detailed documentation, plans, and technical specifications are available upon request. 



The location is favorable: French school, German school, American school, Spanish school, sports facilities, and swimming pool are nearby.



This property is an ideal choice for large families or investors looking for a luxury property that retains its value.



If you are interested in this listing, please feel free to contact us even on weekends.



The floor plan and data are for information only.




Lakás részletei

Ár: 120 000 000 Ft
Méret: 146 négyzetméter
Azonosító: 11594359
Irodai azonosító: 360651121-391
Emelet: Földszint
Építőanyag: Tégla
Fűtés jellege: Egyéb
Ingatlan állapota: Kérdezzen rá a hirdetőtől »
Komfort fokozat: Összkomfort
Építési év: Új építésű
Egész szobák: 4

Egyéb jellemzők

  • Erkély
  • Garázs
  • Klíma
  • Pince
  • Kertkapcsolat
  • Tároló
  • Kocsibeálló

Így keressen budapesti ingatlant négy egyszerű lépésben. Csupán 2 perc, kötelezettségek nélkül!

Szűkítse a budapesti ingatlanok
listáját
Válassza ki a megfelelő
budapesti ingatlant
Írjon a hirdetőnek
Várjon a visszahívásra