Eladó lakás Budapest I. ker 178 000 000 Ft

Leírás

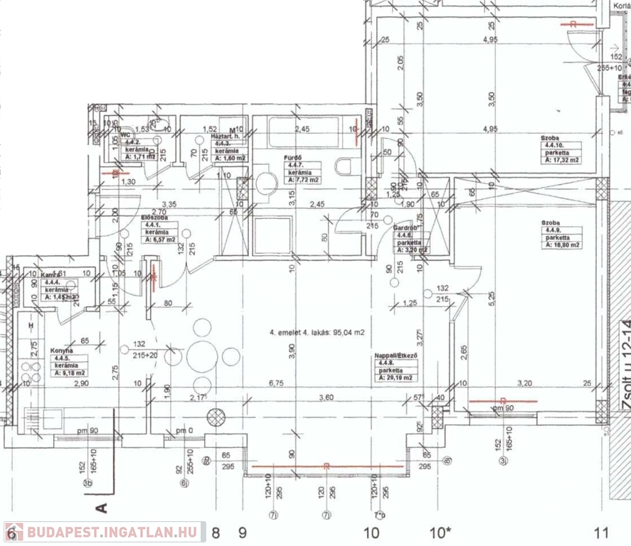
MODERN, FELÚJÍTOTT LAKÁS A ZSOLT UDVARBAN – BUDAPEST I. KERÜLET, 95 M²

Budapest szívében, az I. kerület egyik legkedveltebb részén, a Zsolt Udvari lakóparkban eladó egy világos, 95 m²-es, IV. emeleti, 3 szobás (2 hálószoba + nappali) modern otthon, amelyet három éve teljeskörűen felújítottak.

A lakás jellemzői:
7 emeletes, liftes társasház 4. emeletén található

Élhető, praktikus elrendezés: tágas előszoba, vendég-WC, amerikai konyhás nappali étkezővel, két külön nyíló háló, nagy fürdőszoba, spájz és mosókonyha

Csendes, zöld belső udvarra néző franciaerkély.

Világos terek, nagy ablakok.

Modern, gépesített konyha.

3 db egyedi Stanley beépített szekrény.

2 db hűtő-fűtő klíma.

Eredeti fa parketta.

Korszerű BIASI kazán, 2 éve cserélve.

A ház és környezete:
A 2004-ben épült, modern tégla társasház rendezett, liftes és karbantartott.

A 24 órás portaszolgálat, a profi közös képviselet, valamint az állandó takarító és kertész gondoskodik a kényelmes, biztonságos életvitelről.

A bensőséges belső kert valódi oázis: kerti tó, padok, játszótér, csúszda, hinta és homokozó várja a lakókat.

A házban elérhető fodrász, kozmetika, masszőr, manikűrös és hangulatos kifőzde is.

Lokáció:
Minden fontos szolgáltatás pár perc alatt elérhető: Aldi, gyógyszertár, cukrászda, éttermek, Oxygen Wellness, MOM Park, uszoda, Czakó Piac.

Családosok számára különösen ideális: több játszótér, bölcsőde, óvoda és iskola található a közelben.

Közlekedés:
A 178, 8E, 108E, 110 és 112-es buszokkal a belváros percek alatt elérhető.

A Gellérthegy, Tabán és Filozófusok kertje rövid sétával megközelíthető, így a természetközeli kikapcsolódás mindig kéznél van.

Extrák:
Teremgarázs + tároló megvásárolható együtt: 17 millió Ft

Kulturált lakóközösség, magas színvonalú szolgáltatások

Ez a lakás ideális választás azoknak, akik a belváros közelében, de mégis csendes, zöld környezetben szeretnének élni.

Egy értékálló, igényes otthon Budapest egyik legjobb környékén.

Lakás részletei

Ár: 178 000 000 Ft
Méret: 95 négyzetméter
Azonosító: 11576898
Irodai azonosító: 389222
Cím: Zsolt utca
Emelet: 4. emelet
Építőanyag: Tégla
Fűtés jellege: Cirkó
Ingatlan állapota: Kitűnő
Komfort fokozat: Összkomfort
Építési év: 21-50 éves
Tulajdonviszony: Saját
Kilátás: udvari
Egész szobák: 3

Egyéb jellemzők

  • Erkély
  • Garázs
  • Lift
  • Pince
  • Tároló

Térkép


Így keressen budapesti ingatlant négy egyszerű lépésben. Csupán 2 perc, kötelezettségek nélkül!

Szűkítse a budapesti ingatlanok
listáját
Válassza ki a megfelelő
budapesti ingatlant
Írjon a hirdetőnek
Várjon a visszahívásra