Eladó lakás Budapest I. ker 169 000 000 Ft

Leírás

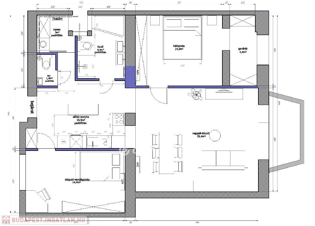
--- Elegánsan felújított, 90 m2-es 4. emeleti, erkélyes, panorámás, ostrom utcai lakás eladó, exkluzív lokációval. ---

A 4. emeleti lakás egy kívül-belül rendben tartott, liftes, art-deco házban található. Ablakai utcára és belső udvarra is néznek, így a lakás minden napszakban kifejezetten világos. Csak ez az egy lakás található a 4. emeleten, így a liftből kiszállva szinte közvetlenül a lakásba léphetünk be, mint egy szállodai lakosztályba. Ez egyúttal azt is jelenti, hogy nincsenek szomszédok és a legfelső szinti előteret kizárólag a lakás tulajdonosa használja.

Lakás adatok és felszereltség
- Új cirkó fűtés: A vizes helységekben, mosókonyhában és a konyhában padlófűtés. A lakás többi részén radiátoros fűtés, mindkét kör külön szabályozható
-3 db, wifi-n, távvezérléssel is működtethető, hűtő-fűtő klíma
-Fürdő: dupla mosdó, zuhany kabin, kád, wc, törülköző szárító radiátor
-Motoros elszívás a wc-ben és fürdőben
-Ablakos fürdőszoba
-3 fázisú villany mérőóra: 3 x 16 A
-Teljesen gépesített konyha: indukciós főzőlap, nagy teljesítményű elszívó, beépített sütő és mikró, beépített hűtő és fagyasztó, mosogató gép
-Mozgatható konyhasziget
-Számos konyhai tárolószekrény, tárolófelület
-Beépített szekrények
-Új nyílászárók, az utca fronton 3 rétegű üvegezéssel
-Közös költség: 21.500 Ft

Felújítás
A lakás felújítása teljesen az alapoktól valósult meg, felszedésre került az aljzat, ki lett szedve az összes belső fal (a főfalakat leszámítva), teljesen új, szigetelt, beton járófelület lett letéve, melyben futnak a padlófűtés csövei is.

Ügyelve az ergonomikus elrendezésre, a lakás belső falai, a födémet tehermentesítve 4 réteg gipszkartonból lettek újraépítve, helyenként dupla vastagságú profillal, a profilokban hangszigeteléssel.

Újra lett tervezve és újraépítve a teljes villany hálózat, valamint fel lett bővítve 3 x 16 A-re.
Újra lett tervezve és újraépítve a teljes víz-fűtés rendszer, új kéménnyel, engedélyezve.
A régi nyílászárók helyett, új, egyedi gyártású, borovi fenyő nyílászárók kerültek be, az utcafronton 3 rétegű üvegezéssel. A fürdőszoba és a konyha teljesen berendezésre és gépesítésre került.

Az OTP Bankcsoport teljes körű ügyintézésével állunk az eladók és a vevők rendelkezésére! A kínálatunkból választott ingatlan finanszírozásához csok, babaváró, illetve kedvezményes hitelkonstrukciókat kínálunk. Az adásvételi szerződés megkötéséhez igény szerint megbízható ügyvédi közreműködést biztosítunk, és segítséget nyújtunk az adásvételhez kapcsolódó ügyek intézéséhez.

Bővebb információért, megtekintésért hívjon bizalommal a hét bármely napján!
Referenciaszám: M226892

Referencia szám: M226892

Lakás részletei

Ár: 169 000 000 Ft
Méret: 87 négyzetméter
Azonosító: 11422145
Irodai azonosító: M226892-4728927
Emelet: 4. emelet
Építőanyag: Tégla
Fűtés jellege: Cirkó
Ingatlan állapota: Kitűnő
Komfort fokozat: Dupla komfort
Építési év: 50 évesnél régebbi
Kilátás: panorámás
Egész szobák: 3

Egyéb jellemzők

  • Lift

Térkép


Így keressen budapesti ingatlant négy egyszerű lépésben. Csupán 2 perc, kötelezettségek nélkül!

Szűkítse a budapesti ingatlanok
listáját
Válassza ki a megfelelő
budapesti ingatlant
Írjon a hirdetőnek
Várjon a visszahívásra