Eladó lakás Budapest I. ker 146 000 000 Ft

Leírás

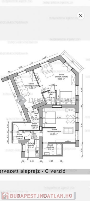
Budapest 1. kerületben a Várnegyed lábánál, eladó egy Horváth kertre panorámás 2. emeleti, 92 nm nagyságú erkélyes lakás!
A ház 1869-ben épült, megőrizvén a múlt hangulatát. Belső folyosói újra lettek kövezve, falai festve.
A lakás két apartmanra lett osztva, melynek bejáratai egy közös előszobából nyílnak. A nagyobbik lakrész 47 nm, helységei: előszoba, konyha étkezővel, fürdő WC-vel, zuhannyal, és egy 29 nm -es tágas sarokszoba, erkéllyel. A kisebbik lakrész 39 nm, helységei: előszoba, konyha, fürdő WC-vel, káddal, és egy 26 nm-es tágas szoba.
Kiváló bérbeadásra, saját lakrész és iroda kialakítására, szülők és felnövekvő gyermekük együtt, de mégis külön lakhatására.

Amennyiben az ingatlan felkeltette érdeklődését, kérem keressen bizalommal!

Lakás részletei

Ár: 146 000 000 Ft
Méret: 92 négyzetméter
Azonosító: 11588902
Irodai azonosító: LK037988-5114025
Cím: 92 nm-es lakás eladó Budapest 1. ker.
Emelet: 2. emelet
Építőanyag: Tégla
Fűtés jellege: Cirkó
Ingatlan állapota:
Építési év: 50 évesnél régebbi
Egész szobák: 3

Egyéb jellemzők

  • Erkély

Térkép


Így keressen budapesti ingatlant négy egyszerű lépésben. Csupán 2 perc, kötelezettségek nélkül!

Szűkítse a budapesti ingatlanok
listáját
Válassza ki a megfelelő
budapesti ingatlant
Írjon a hirdetőnek
Várjon a visszahívásra