Eladó lakás Budaörs 192 000 000 Ft

Leírás

Eladó belső kétszintes lakás Budaörsön!

Várható befejezés: 2023.12.

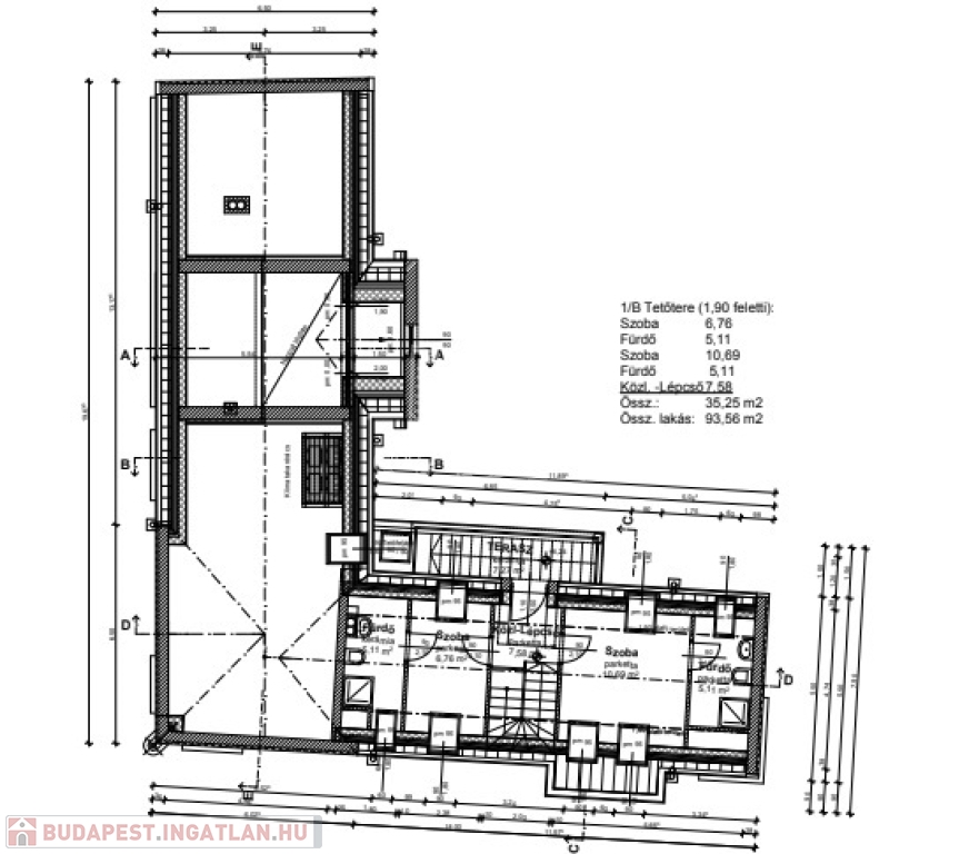
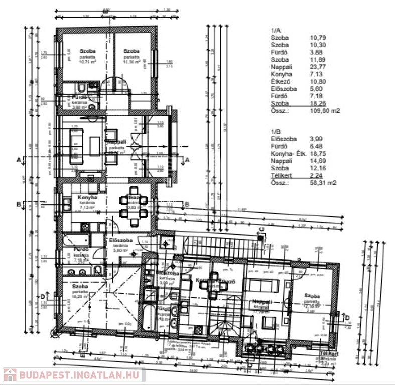
- Amerikai konyhás nappali + 3 szoba és 2 félszoba ( 160 m2)

- Dupla komfort + külön WC

- Terasz (7 m2)

- Klíma ( hűtő-fűtő)

- Padlófűtés

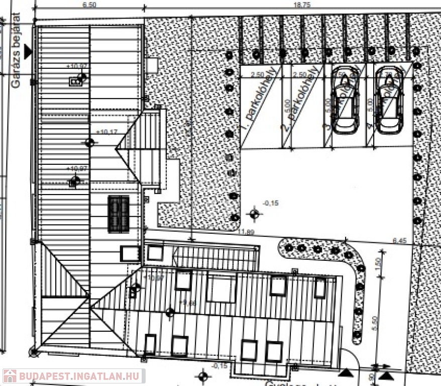
- Felszíni autóbeálló

- Korszerű műanyag nyílászárók

- Szigetelés

- Kertkapcsolat

Jelen készültségi szint lehetővé teszi az új tulajdonosok elképzeléseinek megvalósítását.


Parkolás: felszíni beálló

Közelben: TESCO, MEDIA MARKT, AUCHAN, IKEA, MÖMAX, XXXLUTZ, DIEGO, SALUS GYÓGYPONT, BUDAÖRSI HALPIAC....
Egyéb bevásárlási lehetőségek, óvoda, iskola, bankok, posta, gyógyszertár stb.


Közlekedés: kiváló ( Buszok: 40E, 172, 173, 288, 731, 732, 734, 735, 736, 760, 762, Éjszakai: 940)
Az M1 és M7 autópálya pár perc távolságra található.
Kelenföld vasútállomás autóbusszal 2 megálló.


A hirdetésben feltüntetett adatok és információk csak tájékoztató jellegűek, jogi kötelezettséggel nem bíró jognyilatkozatnak minősülnek, mely nem tekinthető ajánlat tételnek és nem járnak az eladóra nézve kötelező ajánlati kötöttséggel.


Ügyfeleink részére BANKFÜGGETLEN hitelügyintéző kollegáink szívesen nyújtanak segítséget, hitellel vagy akár CSOK-kal kapcsolatban is!

Amennyiben felkeltettem az érdeklődését vagy bármely további kérdése lenne, keressen bizalommal.

Akár hétvégén is!

CSA

Lakás részletei

Ár: 192 000 000 Ft
Méret: 160 négyzetméter
Azonosító: 11248446
Irodai azonosító: 354198
Cím: Budaörsön belső kétszintes lakás
Erkély mérete: 7.00 négyzetméter
Emelet: 1. emelet
Építőanyag: Tégla
Fűtés jellege: Cirkó
Ingatlan állapota: Kitűnő
Komfort fokozat: Dupla komfort
Építési év: Új építésű
Tulajdonviszony: Saját
Kilátás: udvari
Egész szobák: 3
Fél szobák: 2

Egyéb jellemzők

  • Erkély
  • Garázs
  • Lift
  • Pince
  • Tároló

Térkép


Így keressen budapesti ingatlant négy egyszerű lépésben. Csupán 2 perc, kötelezettségek nélkül!

Szűkítse a budapesti ingatlanok
listáját
Válassza ki a megfelelő
budapesti ingatlant
Írjon a hirdetőnek
Várjon a visszahívásra