Eladó lakás Bőny 43 800 000 Ft

Leírás

A LAKÁSOK TÖBBSÉGE MÁR ELKELT, DÖNTSÖN IDŐBEN!
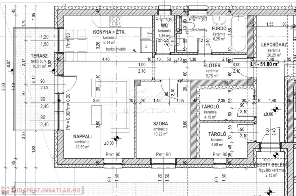
FÖLDSZINTI L1 LAKÁS: 51,8 M2 + 10,51 M2 TERASZ + 60 M2 SAJÁT ZÖLDTERÜLET, TÁROLÓ, PARKOLÓ, GAZDASÁGOS KÖZPONTI FŰTÉS, KITŰNŐ INFRASTRUKTÚRA ÉS KÖZLEKEDÉS, IGÉNY SZERINTI KULCSRAKÉSZ BEFEJEZÉS !
Győrtől 15 percre, Bőny központjának közelében 738 m2-es területen felépült 2 szintes, 6 lakásos társasház utolsó lakása, gazdaságos házközponti fűtéssel, kertkapcsolattal, saját elkerített zöldterülettel, terasszal, közös tárolóval és parkoló vásárlási lehetőséggel eladó .
Emelt szintű fűtéskész átadás 2026 JÚNIUS.
A kulcsrakész befejezést külön megállapodás alapján a kivitelező vállalja.
A térkővel burkolt saját parkoló vételára 2 M Ft.
Az emelt szintű fűtéskész állapot tartalmazza:
- padlófűtés, központi hőszivattyús technológiával
- saját hideg-, melegviz óra,
- 1 x 32 A áramerősség, lefűzött villamos hálózat
- víz és csatorna alapszerelés
- Kömmerling 3 rétegű üvegezésű ablakok redőny előkészítéssel
- biztonsági bejárati ajtó
- INGYENES KÖZÖS TÁROLÓ
- 30-as tégla falazat 15 cm szigeteléssel, a padlásnál 30 cm
- Terrán tetőcserép
- festett homlokzat és kulcsrakész lépcsőház ill. közös tárolók
- térkövezett parkolók
A lakás 10 % önerővel leköthető, a fizetés készültségi fokoknak megfelelően történik.
Az ingatlan a település központjához közel található, bölcsőde, óvoda, általános iskola, faluház, abc, posta, buszmegálló, presszó gyalogosan pár perc alatt elérhető, Győr belvárosa és az Audi gyár is autóval kb. 15 perc.

Bőny Magyarország északnyugati részén, Győrtől 15 km-re keletre a Kisalföldön található, Győr-Moson-Sopron és Komárom-Esztergom vármegye határán. A község területét nyugati és északi irányban több kilométer hosszúságban határolja az M 1 autópálya, melynek Győr keleti lejárója a faluközponttól néhány kilométerre található. A település főutcájaként a 8136 számú, Győrt Tatával összekötő út funkcionál.
A TRADÍCIÓ INGATLANIRODA AZ ALÁBBI SZOLGÁLTATÁSOKKAL ÁLL AZ ÜGYFELEK RENDELKEZÉSÉRE:
- LAKOSSÁGI ÉS IPARI INGATLANOK ÉRTÉKESÍTÉSE ÉS BÉRBEADÁSA
- DÍJMENTES PÉNZÜGYI TANÁCSADÁS, HITELÜGYINTÉZÉS, LAKÁSHITELEK, ÁLLAMI TÁMOGATÁSOK / CSOK, ÁFA / , BABAVÁRÓ HITEL, SZEMÉLYI KÖLCSÖN, LAKÁSTAKARÉK, BIZTOSÍTÁS
- JOGI HÁTTÉR, ADÁSVÉTELI SZERZŐDÉSEK KÉSZÍTÉSE KEDVEZŐ FELTÉTELEKKEL
- ENERGETIKAI TANÚSÍTVÁNY KÉSZÍTÉSE
- INGATLAN ÉRTÉKBECSLÉS
AMENNYIBEN GYŐRI, ILL. GYŐR KÖRNYÉKI, ELADÓ VAGY KIADÓ INGATLANNAL RENDELKEZIK, KÉREM HÍVJON!

Lakás részletei

Ár: 43 800 000 Ft
Méret: 52 négyzetméter
Azonosító: 11615649
Irodai azonosító: 111871
Cím: Bőny
Emelet: Földszint
Építőanyag: Kérdezzen rá a hirdetőtől »
Fűtés jellege: Cirkó
Ingatlan állapota: Épülő
Építési év: Új építésű
Egész szobák: 2

Egyéb jellemzők

  • Erkély

Így keressen budapesti ingatlant négy egyszerű lépésben. Csupán 2 perc, kötelezettségek nélkül!

Szűkítse a budapesti ingatlanok
listáját
Válassza ki a megfelelő
budapesti ingatlant
Írjon a hirdetőnek
Várjon a visszahívásra