Eladó lakás Balatonlelle 143 214 750 Ft

Leírás

Balatonlellén impozáns, vízparti környezetben, új építésű, kulcsrakész, luxus lakások eladóak.

Balatonlelle a déli part kiemelkedő helyszíne, amely egész évben várja az idelátogatókat. A lakások elhelyezkedéséből adódóan kiválóan alkalmasak nyaraló és állandó lakhatásra illetve értékálló befektetésnek is. A kivitelező partnercége igény szerint vállalja a lakás hozamtermelő üzemeltetését is, teljes szolgáltatási csomaggal.

A terület 5336 m2-es, bekerített, ősfás, parkosított telek, balatoni panorámával. Az itt lakók kényelmét felnőtt-és gyermekmedence is szolgálja.

Az épület 3 szintes (földszint + 2 emelet), két szárnyépületből álló apartmanház, 29 db lakással illetve 41 db felszíni parkolóhellyel.

Az épület tervezésénél a funkcionalitás mellett fő szempontok voltak az egyszerűség, az elegancia, a harmónia és a modernitás, ezek mellett a kedvező megközelítés, tájolási és panoráma adottságok kihasználása is.

Az ingatlan téglából épült, szigetelt, lapos tetős épület. Fűtését, hűtését és meleg víz ellátását 6 db Remeha levegő-víz hősszivattyú biztosítja, indirekt tárolón keresztül, padló-és mennyezeti fűtéssel illetve mennyezeti hűtéssel, helyiségenkénti vezérléssel, egyedi mérős elszámolással. A+ energia besorolássál rendelkezik.

Az ingatlanberuházó/kivitelező számos referenciával, maximalizmussal rendelkezik. Céljuk, hogy a legmagasabb minőségben kerüljenek átadásra az ingatlanok. Teljes önerőből, külső finanszírozás nélkül épít, 100%-ban magyar tulajdonú vállalkozás.

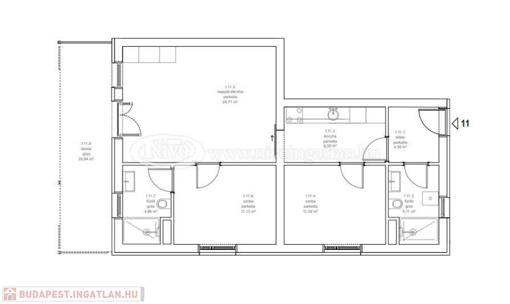
A hirdetésben szereplő konkrét lakás:
- földszinti,
- 11. számú lakás,
- alapterület: 69,37 m2 + 37,85 m3 kert + 25,94 m2 terasz,
- 1+2 szobás,
- bruttó, kulcsrakész ár: 143.214.750 Ft (5% ÁFA-tartalom).

A parkoló darab ára: bruttó 3.810.000 Ft (27% ÁFA-tartalom).

Érdeklődő Ügyfeleink kérésére alaprajzot, műszaki leírást, egyéb információkat küldünk, de irodánkban is szívesen állunk rendelkezésükre részletes tájékoztató megbeszélésen.

A helyszíni bejárást leszervezzük, időpont egyeztetéssel.

A hirdetésben szereplő információk tájékoztató jellegűek, a változtatás jogát a Tulajdonos fenntartja.


Az ingatlan megtekintése irodánkkal előre egyeztetett időpontban történik. Szívesen állunk rendelkezésre!

Keresünk és kínálunk eladó és bérbeadó ingatlanokat, albérleteket Veszprém, Balaton, Bakony, Káli-medence régióban.
Ügyeleti telefonszámunk: .
A Nívó Ingatlanforgalmi Szakértői Iroda teljes eladó és bérbeadó ingatlan és albérlet kínálatát megtekintheti a oldalunkon.

Irodai azonosító kód: N4698 Nívó ingatlan: N4698

Lakás részletei

Ár: 143 214 750 Ft
Méret: 69 négyzetméter
Azonosító: 11455577
Cím: 8200 Veszprém, Kőbánya utca 2.
Építőanyag: Kérdezzen rá a hirdetőtől »
Fűtés jellege: Egyéb
Ingatlan állapota: Kérdezzen rá a hirdetőtől »
Építési év: 1-5 éves
Elhelyezkedés: Társasház
Egész szobák: 3

Egyéb jellemzők

  • Erkély
  • Klíma

Így keressen budapesti ingatlant négy egyszerű lépésben. Csupán 2 perc, kötelezettségek nélkül!

Szűkítse a budapesti ingatlanok
listáját
Válassza ki a megfelelő
budapesti ingatlant
Írjon a hirdetőnek
Várjon a visszahívásra