Eladó lakás Balatonalmádi 154 900 000 Ft

Leírás

Veszprémi CASANETWORK iroda ELADÁSRA KÍNÁLJA A 2435-ES SZÁMÚ ÚJ ÉPÍTÉSŰ lakását Balatonalmádiban.

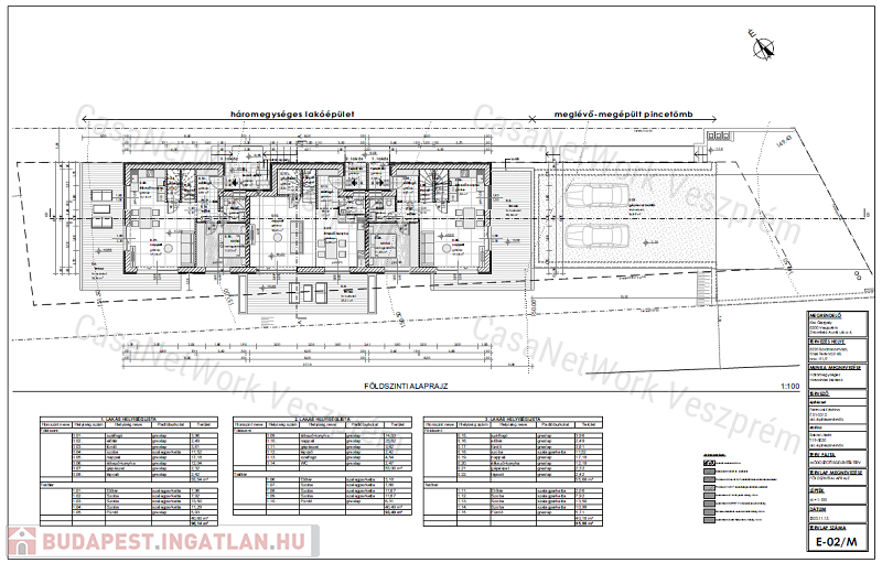
A Balatonra részbeni panorámával rendelkező, Balatonalmádi belterületén, a vörösberényi részen eladásra kínálom az új építésű  háromlakásos társasház téglalakásait. A lakásokhoz látványtervek készültek. A jóváhagyott kivitelezési dokumentáció alapján a földszint + tetőteres kialakítású lakások impozáns megjelenésűek és családi környezetbe illő kialakítással várják az új tulajdonosokat.

A terveken látható két szélső lakás alaprajzi elrendezése ugyanaz, míg a középső lakás a nappali növelése céljából 1 hálószobával kevesebbel rendelkezik.Ez a hirdetés az 1,-es lakás.

Mindegyik lakáshoz tartozik átlag 35 m2 terasz, illetve a két szélső lakáshoz nagyobb kertterület is  300 m2 és 65 m2 méretekben.

A lakásokra vonatkozó főbb műszaki paraméterek az alábbiak:

- min. "A+" energetikai besorolással,

- 38 cm-es kerámia (porotherm, leiertherm) falazat, 12 cm-es grafitos hőszigeteléssel,

- válaszfalak szintén kerámia falazattal építve,

- fűtés és meleg vízellátás levegő-víz hőszivattyúval, padló-, és mennyezet fűtéssel/hűtéssel,

- műanyag külső nyílászárók 3 rétegű üvegezéssel,

- monolit vasbeton födémmel,

- teraszra kivezető ajtók elhúzós kivitelben készülnek.

- a lakásokhoz felszíni beállók tartoznak.

Az új tulajdonos által kiválasztott burkolatokkal, szerelvényekkel és szaniterekkel kerül kivitelezésre a ház.

Amennyiben a VESZPRÉMI CASANETWORK IRODA által kínált 2435. számú INGATLAN felkeltette érdeklődését, kérem hívjon a megadott telefonszámon.

Irodánk az ingatlan vásárlással összefüggő teljes körű ügyvédi, illetve díjmentes, bank semleges hitel-ügyintézéssel áll rendelkezésére.

CasaNetwork - A civilizált ingatlanértékesítés artériája


Lakás részletei

Ár: 154 900 000 Ft
Méret: 110 négyzetméter
Azonosító: 11581381
Irodai azonosító: 156202435
Építőanyag: Tégla
Ingatlan állapota:
Egész szobák: 4
Fél szobák: 1

Így keressen budapesti ingatlant négy egyszerű lépésben. Csupán 2 perc, kötelezettségek nélkül!

Szűkítse a budapesti ingatlanok
listáját
Válassza ki a megfelelő
budapesti ingatlant
Írjon a hirdetőnek
Várjon a visszahívásra