Eladó lakás Ajka 96 568 000 Ft

Leírás

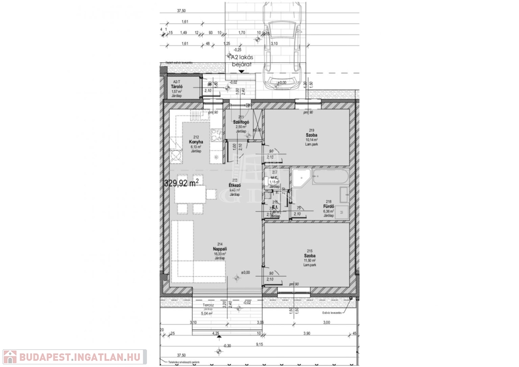
Új építésű lakások saját telekkel!

Ingatlanirodánk eladásra kínálja ezt az ÚJ ÉPÍTÉSŰ lakást Ajka-Bakonygyepesen!

- Az ingatlan egy 4 lakásos társasházban található.
- Az ingatlan 121 nm.
- A ház körbekerített, zárt telken helyezkedik el, ahol a lakásokhoz felszíni PARKOLÓHELY illetve saját TELEK is tartozik.

Műszaki adatok:
- A társasház földszinti teherhordó és térelhatároló falszerkezetei 30 cm vastagsággal, LEIER N+F típusú falazóblokkból készülnek, míg a válaszfalak 10 cm vastagsággal szintén LEIER válaszfallapokból.
- Födémszerkezet 20 cm vastag monolit vasbeton szerkezet XPS kiegészítő hőszigeteléssel.
- Tető kialakítása lapostető.
- Homlokzati nyílászárók Spectus 70 típusú belül fehér, kívül antracit színű műanyagszerkezetek 2 rétegű hőszigetelő üvegezéssel, redőnnyel ellátva.
- A ház homlokzati szigetelése 15 cm vastag dryvit EPS 80 hőszigetelő rendszerrel készül.
- A társasház fűtése padlófűtéses kialakítású hőszivattyús rendszer.
- Az ingatlan burkolatok, szaniterek, belső ajtók, konyhabútor nélkül kerül átadásra!

Kivitelezés várható befejezése: 2025. III. negyedév

Amennyiben a veszprémi GDN Ingatlaniroda által kínált ÚJ építésű projekt, vagy bármely a kínálatunkban található ingatlan felkeltette érdeklődését forduljon hozzám bizalommal!

Ingatlanirodánk díjmentes, banksemleges hitelügyintézéssel, illetve ügyvédi tanácsadással is áll Ügyfeleink rendelkezésére!

Lakás részletei

Ár: 96 568 000 Ft
Méret: 121 négyzetméter
Azonosító: 11425194
Irodai azonosító: 373670
Cím: Aporfi M.
Emelet: Földszint
Építőanyag: Tégla
Fűtés jellege: Hőszivattyú
Ingatlan állapota: Kitűnő
Komfort fokozat: Összkomfort
Építési év: Újszerű
Tulajdonviszony: Saját
Kilátás: udvari
Egész szobák: 4
Fél szobák: 1

Egyéb jellemzők

  • Erkély
  • Garázs
  • Lift
  • Pince
  • Tároló

Térkép


Így keressen budapesti ingatlant négy egyszerű lépésben. Csupán 2 perc, kötelezettségek nélkül!

Szűkítse a budapesti ingatlanok
listáját
Válassza ki a megfelelő
budapesti ingatlant
Írjon a hirdetőnek
Várjon a visszahívásra