Eladó iroda/üzlethelyiség Tatabánya 194 000 000 Ft

Leírás

Ikonikus intézményi épület eladó Tatabánya–Bánhida szívében

Tatabánya Bánhida városrészének központjában kínálunk megvételre egy különleges megjelenésű, háromszintes, 514 m²-es intézményi épületet, amely több évtizede meghatározó szereplője a környék közösségi életének.
A rendezett, zöld környezetben álló ingatlan 814 m²-es telken helyezkedik el, közvetlen közelében park, szolgáltatások és kiváló közlekedés található.

Terek, amelyek alkalmazkodnak a jövőhöz

Az épület jelenlegi kialakítása oktatási célokat szolgál, de szerkezetének és elrendezésének köszönhetően rendkívül sokoldalúan hasznosítható:

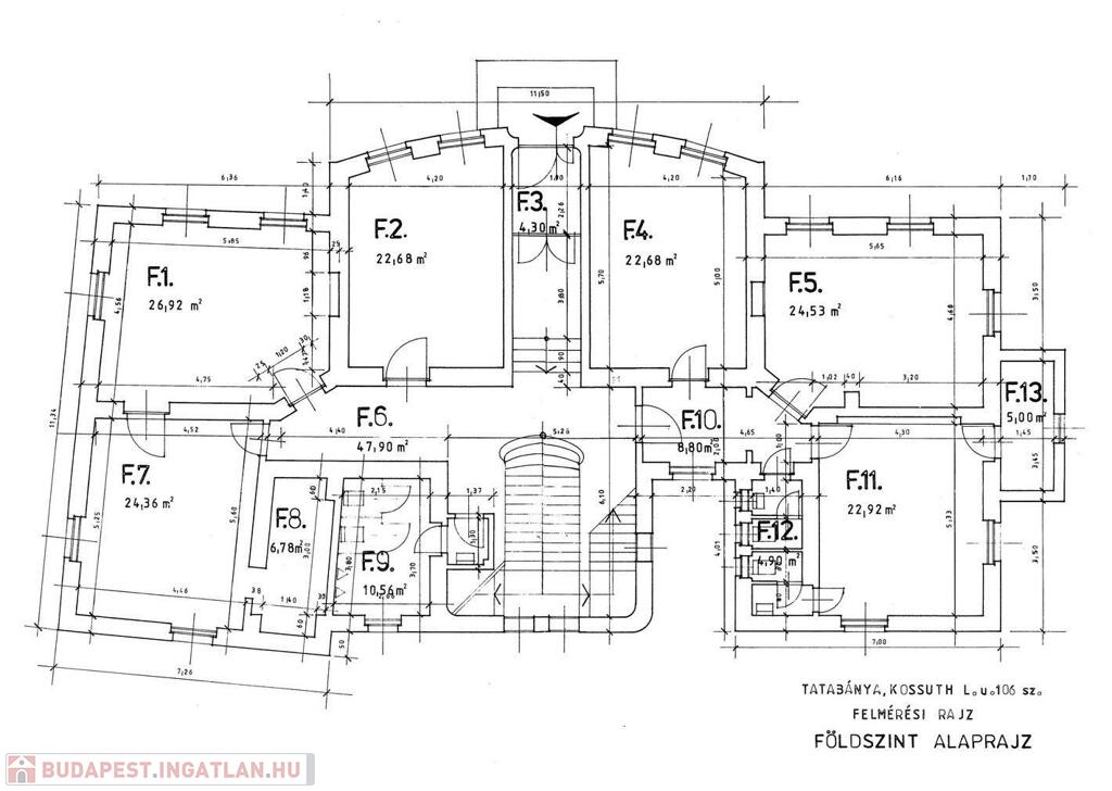
Földszint: 20–27 m²-es irodák, tárgyalók, közlekedők, szociális blokkok

Emelet: közel 60 m²-es nagyterem, valamint több kisebb oktató- vagy tárgyalóterem

Pince: tágas tárolók és irattár kialakítására alkalmas helyiségek

A szinteken további kisebb raktárhelyiségek is rendelkezésre állnak

Az alaprajz jól tagolt, a helyiségek világosak, magas belmagasságúak, nagy ablakfelületekkel.

Műszaki tartalom – bár némileg felújítandó, de biztos alapok

2015-ben cserélt, hőszigetelt üvegezésű fa és műanyag nyílászárók
Két gázkazános fűtési rendszer(kondenzációs), helyiségenként szabályozható radiátorokkal
stabil szerkezet, klasszikus építészeti formák
Közterületi, ingyenes parkolás közvetlenül az épület előtt

Kinek ideális választás?

Ez az ingatlan nemcsak múltjában érték, hanem jövőjében is lehetőség:
oktatási vagy képzési központ
egészségügyi, magánorvosi, terápiás intézmény
irodaház, cégközpont
közösségi, kulturális vagy alkotótér
alapítványi, egyházi vagy nonprofit funkciók

A környezet igényes, csendes, mégis kiválóan megközelíthető: helyi buszmegálló 50 méteren belül, üzletek és lakóövezet a közelben.

Főbb adatok egyben
Telek: 814 m²
Épület: 514 m²
Szintek száma: pince + földszint + emelet
Irányár: 194.000.000 Ft
Ha egy karakteres, azonnal használható, mégis továbbfejleszthető intézményi ingatlant keresel Tatabányán, ez az épület ritka lehetőség.
Ha az ingatlan felkeltette az érdeklődését, egyeztessünk egy időpontot a helyszíni bejárásra.
Irodánk teljes körű jogi háttérrel és szerződéskészítéssel áll rendelkezésre, így a folyamatot szakszerűen, gördülékenyen bonyolítjuk le.

Érdeklődni:
Szabó Szilvia
+36 70 367 7636

Iroda/üzlethelyiség részletei

Ár: 194 000 000 Ft
Méret: 514 négyzetméter
Azonosító: 11587353
Irodai azonosító: 9622
Cím: Tatabánya
Jelleg: iroda

Egyéb jellemzők

  • Lift

Így keressen budapesti ingatlant négy egyszerű lépésben. Csupán 2 perc, kötelezettségek nélkül!

Szűkítse a budapesti ingatlanok
listáját
Válassza ki a megfelelő
budapesti ingatlant
Írjon a hirdetőnek
Várjon a visszahívásra