Eladó iroda/üzlethelyiség Ludányhalászi 11 980 000 Ft

Leírás

Nógrád megyében, Magyarország egyik leghosszabb falujában, Ludányhalásziban ELADÓ!

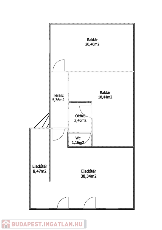
Egy 90 m2 es vegyes falazatú sátortetös cserépfedéses üzlethelyiség, amely ezidáig jól prosperáló élelmiszer kisboltként működött. Akár üzletként is tovább vihető, vagy megfelelő ráfordítás esetén, újra családi házzá alakítható.
Az ingatlan egy 642 m2 –es telek területen helyezkedik el, amelyen egy kisebb vendég ház van, akár falusi turizmus céljára is alkalmas lehet. A fő épület alatt helyezkedik el egy kb 10 m2-es száraz pince, amely teljes belmagasságú, ezért boros pincének, vagy élelmiszer tárolására is alkalmas. Ludányhalászi közvetlen közelében, folyik egyik határfolyónk az Ipoly és itt található egy üdülő területként használt 35 ha-os horgásztó is. Mind két hely közkedvelt a kirándulók és a horgászat szerelmesei számára is. Az egészségügyi,kulturális, és szociális létesítmények a település központjában találhatóak.
Tömegközelkedés szempontjából átlagosnak mondható, parkolási lehetőség udvaron biztosított.

A csendes környezetének köszönhetően, kifejezetten ajánlom azoknak, akik a nagyváros zaját megunva vidéken szeretnék saját elképzeléseik szerint kialakítani új otthonukat. A folyó és a tó közelsége miatt akár saját vállalkozásként is működtethető, horgászati turizmusra kifejezetten alkalmas.

Iroda/üzlethelyiség részletei

Ár: 11 980 000 Ft
Méret: 90 négyzetméter
Azonosító: 11272805
Irodai azonosító: 354906
Cím: Központhoz közeli
Jelleg: Üzlethelyiség

Egyéb jellemzők

  • Garázs
  • Parkoló
  • Utcafront

Térkép


Így keressen budapesti ingatlant négy egyszerű lépésben. Csupán 2 perc, kötelezettségek nélkül!

Szűkítse a budapesti ingatlanok
listáját
Válassza ki a megfelelő
budapesti ingatlant
Írjon a hirdetőnek
Várjon a visszahívásra