Eladó iroda/üzlethelyiség Hévíz 99 900 000 Ft

Leírás

Hévíz központjában felújított üzlethelyiség eladó. A település egész évben vonzza a látogatókat!

Hévíz frekventált részén a tófürdőhöz vezető sétáló utcán eladó egy összesen 94,61 m2-es, két részre osztott, külön-külön utcafronti bejáratú, nagy kirakattal rendelkező, modern üzlethelyiség.
Az ingatlan egy tégla építésű társasház földszintjén helyezkedik el.
Az üzlet előtti terasz az ingatlanhoz tartozik, ide is lehet pakolni. Igény esetén a társasháztól és az önkormányzattól lehet további területet bérelni terasz kialakításához..

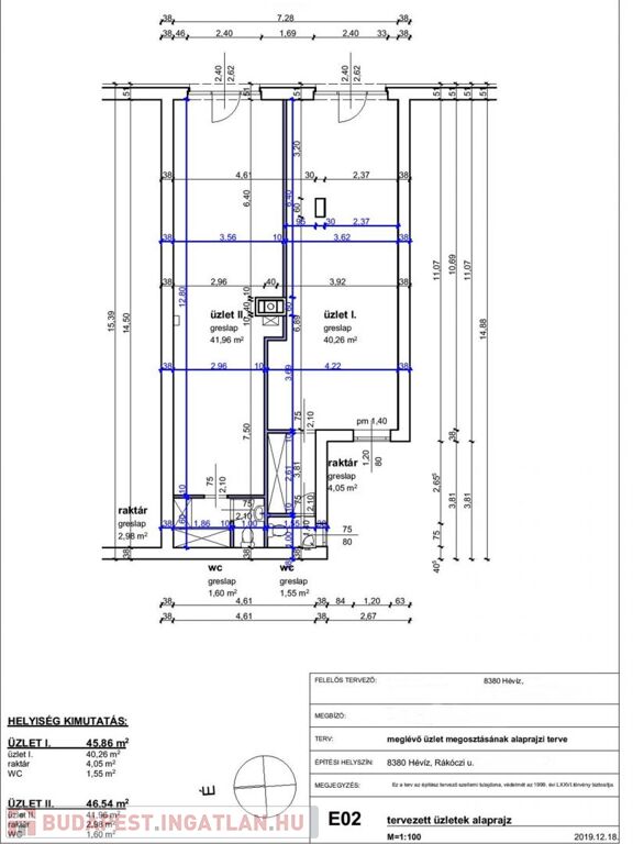
Megosztás után létrejött:
1 ÜZLET 45,86 m2
40,26 m2 üzlet
4,05 m2 raktár
1,55 m2 WC

2. ÜZLET: 46,54 m2
41,96 m2 üzlet
2,98 m2 raktár
1,6 m2 WC

Az üzletet gipszkarton fallal osztották meg, így igény esetén egyszerűen egybenyithatók.
Besorolása szerint üzlethelyiség, de átminősíttethető lakássá is.

Fűtés gázkazánnal, radiátoros hőleadókkal. A kazán a 2. üzletben található, de az 1. üzlet fogyasztása külön hőmennyiségmérővel mérhető.
Víz, villany mindkét részben elérhető.

Az üzletek frissen festve, modern, rejtett LED világítással várják új tulajdonosukat.

Az ingatlan alkalmas üzleti célokra, irodának, bemutatóteremnek, masszázsszalonnak, BANK fióknak vagy vendéglátó egységnek, kávézónak is.
Amennyiben befektető, magas bérleti díjjal ki is tudja adni mindkettőt külön-külön is!

Magánszemély tulajdonos, így ÁFA mentes az ingatlan.
AZ INGATLAN AZONNAL BIRTOKBA VEHETŐ!

Elhelyezkedése kiváló, így hamar megtérül a befektetés!
Hívjon most! Tekintse meg mielőbb!

Iroda/üzlethelyiség részletei

Ár: 99 900 000 Ft
Méret: 95 négyzetméter
Azonosító: 11487730
Irodai azonosító: 114284
Cím: Hévíz
Jelleg: Üzlethelyiség

Egyéb jellemzők

  • Lift

Így keressen budapesti ingatlant négy egyszerű lépésben. Csupán 2 perc, kötelezettségek nélkül!

Szűkítse a budapesti ingatlanok
listáját
Válassza ki a megfelelő
budapesti ingatlant
Írjon a hirdetőnek
Várjon a visszahívásra