Eladó iroda/üzlethelyiség Hajdúszoboszló 134 900 000 Ft

Leírás

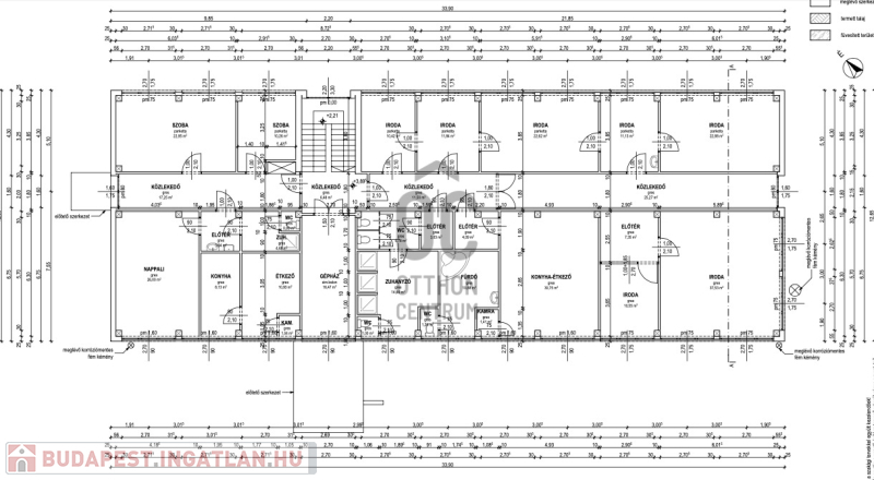
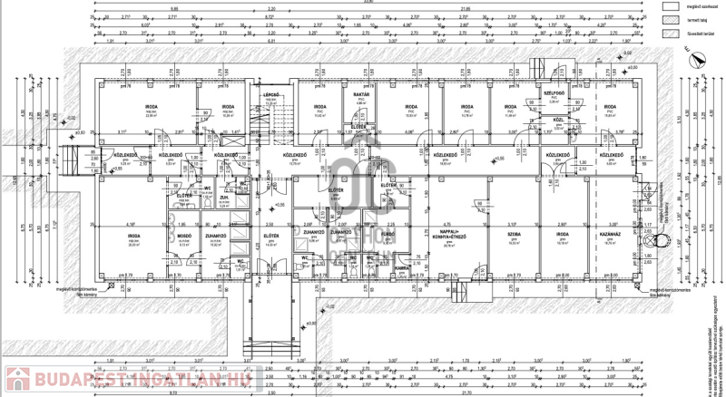
Hajdúszoboszlón eladó egy jó állapotú, igény szerint átalakítható nettó 760 nm -es tágas, világos, többcélú hasznosításra alkalmas ingatlan, a hozzá tartozó telek mérete 2974 nm. Jelenleg raktározási célra használják, de lakás vagy iroda kialakítására is van lehetőség. A telek nagysága még lehetőséget biztosít egy 760 nm -es alapterületű ingatlan építésére, két szint magasságig. ( 1520 nm )

Az ingatlan főbb jellemzői
- panel elemekből épült
- fa nyílászáró
- több bejárat
- 760 nm két szinten, tágas terek, nagy üvegfelület
- több raktárhelyiség és szociális helyiség
- autóbeállási lehetőség az udvarra
- riasztó
- ipari áram

Az ingatlan kifejezetten alkalmas kereskedelmi tevékenységre, nagyméretű üzlethelyiségek, tárolásra, raktárhelyiségének, irodáknak, akár részben vagy egészben lakások kialakítására is.

Bővebb tájékoztatással, megtekintéssel várom hívását. Hétvégén is!

Iroda/üzlethelyiség részletei

Ár: 134 900 000 Ft
Méret: 760 négyzetméter
Azonosító: 11424589
Jelleg: iroda

Így keressen budapesti ingatlant négy egyszerű lépésben. Csupán 2 perc, kötelezettségek nélkül!

Szűkítse a budapesti ingatlanok
listáját
Válassza ki a megfelelő
budapesti ingatlant
Írjon a hirdetőnek
Várjon a visszahívásra