Eladó iroda/üzlethelyiség Hajdúnánás 119 000 000 Ft

Leírás

Belvárosi, 8 szobás, klimatizált üzletház eladó Hajdúnánáson – kiváló befektetés, jelenleg is bérbeadott!

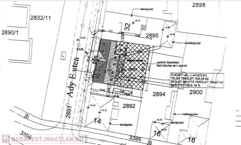
Hajdúnánás belvárosában, frekventált helyen, 540 m²-es telken kínálunk eladásra egy kétszintes, 8 szobás, klimatizált üzletházat, mely jelenleg teljes egészében bérbeadott, így azonnali hozamot biztosít új tulajdonosának.
Az ingatlan a kétezres évek elején épült, beton alapra, tégla falazattal, cserepeslemez tetővel.
Alapterülete: 325 m² (nettó 281 m²).
Fűtését gázkazán biztosítja, emellett 5 darab hűtő-fűtő klíma gondoskodik a kellemes hőmérsékletről egész évben.

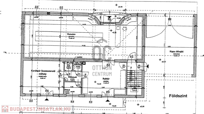
Helyiségek beosztása:

Földszint:
1 db 75 m²-es, utcafronti, nagy helyiség
2 külön szoba (22 és 20 m²)
Konyha, WC, kézmosó, lépcsőház

Tetőtér:
82/66 m²-es nagy szoba
42/31 m²-es szoba
2 kisebb szoba (21/11 m² és 19/10 m²)
WC, tusoló, lépcsőház

A teljesen térkövezett udvar akár 8 autó parkolására is alkalmas, valamint található rajta egy kb. 20 m²-es különálló épület, amelyben szoba, fürdőszoba és WC került kialakításra – lakhatásra vagy irodának is kiváló.
Tulajdoni lapon: kivett lakóház, udvar, műszaki bolt megnevezés szerepel.

Főbb jellemzők:
Központi, belvárosi elhelyezkedés
540 m² telek, 325/281 m² hasznos alapterület
8 szoba + konyha + szociális helyiségek
Gázkazán és 5 klíma (hűtés-fűtés)
Parkoló: akár 8 autó részére
Különálló, 20 m²-es lakható melléképület
Stabil bérlői háttér, azonnali hozam
Ár alkuképes!

Kiváló választás befektetőknek, vállalkozóknak, vagy akár többfunkciós irodaháznak, rendelőnek, panziónak is.
Jelenlegi bérleti szerkezete biztos, folyamatos bevételt nyújt!

Az ingatlan megtekintése kizárólag előre egyeztetett időpontban lehetséges. Hívjon bizalommal – ne maradjon le erről a lehetőségről!

Iroda/üzlethelyiség részletei

Ár: 119 000 000 Ft
Méret: 300 négyzetméter
Azonosító: 11577674
Jelleg: iroda

Így keressen budapesti ingatlant négy egyszerű lépésben. Csupán 2 perc, kötelezettségek nélkül!

Szűkítse a budapesti ingatlanok
listáját
Válassza ki a megfelelő
budapesti ingatlant
Írjon a hirdetőnek
Várjon a visszahívásra