Eladó iroda/üzlethelyiség Gyál 78 000 000 Ft

Leírás

Eladó 260 m2-es ingatlan 698 m2-es telken.
Jelenlegi kialakítása főként vállalkozásra előnyös, de lakóingatlannak is könnyen visszaállítható.
Lakóház udvarként nyilvántartva.

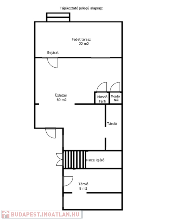
Az első épület 105 m2, bejárata a 20 m2 fedett teraszról nyílik.
60 m2 üzlettér, férfi-női mosdó, tároló és a tároló alatt pince 20 m2.
A biztonságról riasztó rendszer gondoskodik.
Az ingatlan jó közlekedéssel rendelkezik, a város központi részén.
Vendéglátó egység, italdiszkont, feldolgozó-csomagoló üzem volt korábban.
Az épület toldaléka az oldalkert felől nyíló 25 m2-es felújított garzon ( egy légteres szoba-konyha, fürdő-WC)
Az udvar hátsó részében elhelyezkedő épület 130 m2 ( raktár, WC-mosdó, az emelet egy légteres, irodai munkára használták)
Az épületek külön almérőkkel rendelkeznek.
Háromfázisú áram bekötve.
A parkolás több gépjármű részére megoldott az udvarban, vagy az ingatlan előtt.
Az ingatlan kiürített, tehermentes, akár azonnal birtokba vehető.
Otthonából vállalkozhat.

Ne hagyja ki ezt a lehetőséget!
(További kínálatunkat keresse a VING hivatalos weboldalán.)

Iroda/üzlethelyiség részletei

Ár: 78 000 000 Ft
Méret: 260 négyzetméter
Azonosító: 11392944
Irodai azonosító: 793565
Jelleg: Üzlethelyiség

Így keressen budapesti ingatlant négy egyszerű lépésben. Csupán 2 perc, kötelezettségek nélkül!

Szűkítse a budapesti ingatlanok
listáját
Válassza ki a megfelelő
budapesti ingatlant
Írjon a hirdetőnek
Várjon a visszahívásra