Eladó iroda/üzlethelyiség Debrecen 750 000 000 Ft

Leírás

Eladó irodaház Debrecen szívében, azonnal birtokba vehető!

Debrecen az ország egyik legdinamikusabban fejlődő gazdasági, egyetemi, turisztikai és kulturális központja. A városban olyan meghatározó nagyvállalatok telepedtek meg, mint a BMW, az NI, a CATL , aTEVA, a FAG, a KITE vagy a HUNÉP. A folyamatos beruházások, a határ közelsége és a saját repülőtér mind hozzájárulnak a térség kiemelkedő innovációs és gazdasági fejlődéséhez.

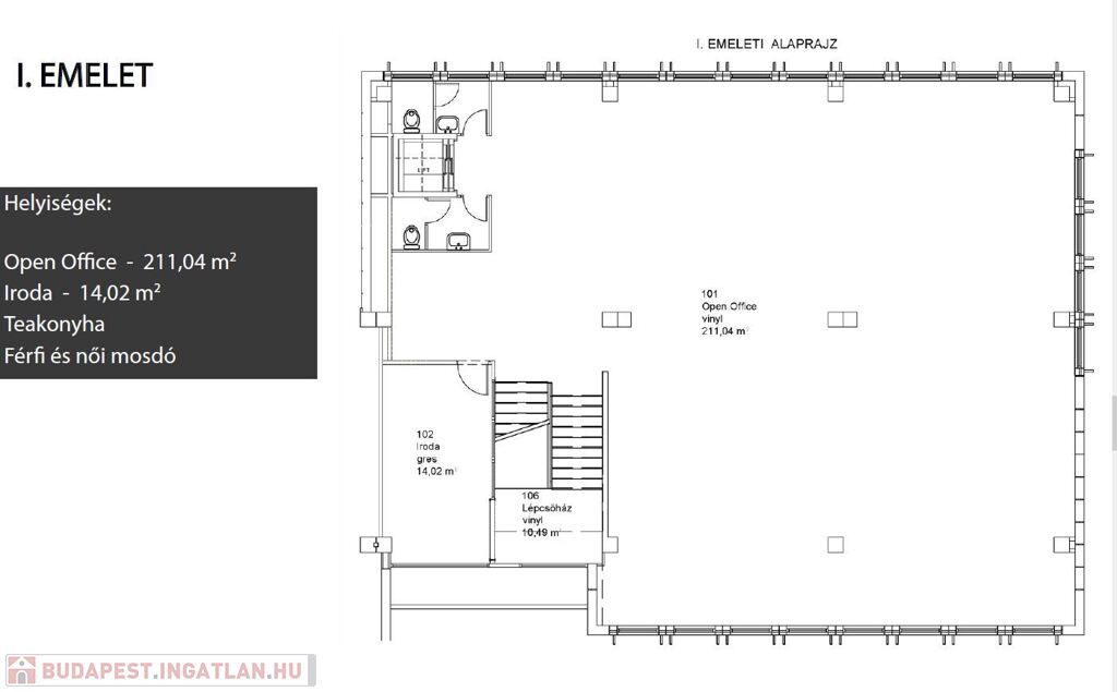
Az eladó irodaház a belváros szívében, a központtól mindössze 3 perc sétára található. A modern, inspiráló környezetben kialakított épület három szinten kínál irodákat, közös konyhával és minden szükséges infrastruktúrával. Az épület üzemeltetése nagyon gazdaságos mivel saját napelees rendszerrel van felszerelve, ez biztosítja a hőszivatyus fűtéshez szükséges energiát.
Igaz hogy 3 szintes az épület de mégis saját belső liftel rendelkezik.
A földszinten plusz egy galéria található, így bemutató teremnek és irodának is tökéletes, akár kereskedelmi egység(webshop), akár egészségügyi intézmény is létrehozható itt.

Kiváló elhelyezkedés és infrastruktúra:

Főtér és Nagytemplom: 5 perc

Villamosmegálló (1, 2-es járat): 1-4 perc

Buszmegálló (11, 14I, 15, 15Y, 24, 24Y, 43): 2 perc

200 férőhelyes parkoló közvetlenül az épület mögött

Bank, posta, gyógyszertár, éttermek és bevásárlóközpont pár perc sétára

Az ingatlan fő előnyei:
Kivételes lokáció a belvárosban
Háromszintes, azonnal birtokba vehető irodaház
Kényelmes közlekedés autóval és tömegközlekedéssel
Széleskörű szolgáltatások közvetlen közelben
Stabil értéktartás és befektetési potenciál

Ez az irodaház ideális választás azok számára, akik Debrecen központjában szeretnének saját tulajdonú irodát, vagy hosszú távra keresnek értékálló befektetést.
A megvásárlásban segítséget nyujthat a vállakozásoknak elérhető OTP-s beruházási hitel illetve a KAVOS 3% hitelt. A hitel széles körben alkalmas beruházási célok megvalósítására,
állami kamat-, kezelési költség- és kezességi díjtámogatás,
akár 500 millió forint hitelösszeg igényelhető,
legfeljebb 10 éves futamidőre nyújtható.
Megtekíntésért hívjon most!

Iroda/üzlethelyiség részletei

Ár: 750 000 000 Ft
Méret: 700 négyzetméter
Azonosító: 11595447
Cím: Irodaház Debrecen szívében eladó!
Emelet: Földszint
Jelleg: iroda
Elhelyezkedés: Irodaházban
Tulajdonviszony: Tulajdonjog

Egyéb jellemzők

  • Berendezés
  • Garázs
  • Lift
  • Parkoló
  • Utcafront

Térkép


Így keressen budapesti ingatlant négy egyszerű lépésben. Csupán 2 perc, kötelezettségek nélkül!

Szűkítse a budapesti ingatlanok
listáját
Válassza ki a megfelelő
budapesti ingatlant
Írjon a hirdetőnek
Várjon a visszahívásra