Eladó iroda/üzlethelyiség Debrecen 299 000 000 Ft

Leírás

**Eladó Üzlethelyiség Debrecen Belvárosában – Kiváló Lehetőség a Vállalkozásának!**

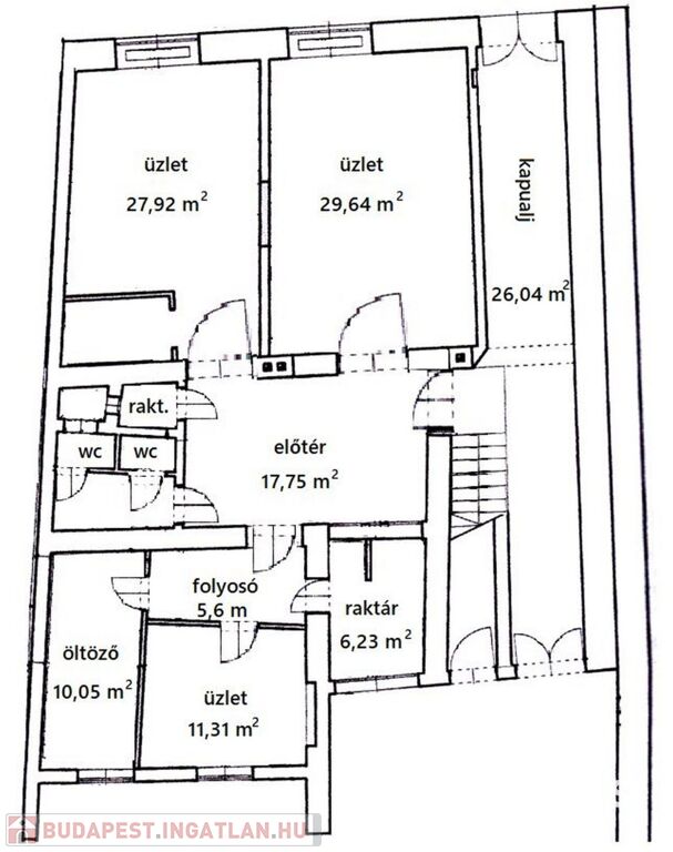
Szeretne egy tökéletes helyszínen lévő ingatlant, amely kielégíti minden üzleti igényét? Debrecen szívében, a Belváros városrészben kínálunk eladásra egy kiváló minőségű, 230 m²-es üzlethelyiséget, amely 683 m²-es telken található.

Ez a háromszintes épület kiváló állapotban várja új tulajdonosát. A kilenc iroda és üzlethelyiség, lehetőséget biztosít különféle üzleti tevékenységek kialakítására és működtetésére, legyen szó irodákról, bemutatótermekről vagy szolgáltatói egységekről. A három mosdó-wc biztosítja a kényelmet mind a munkatársak, mind az ügyfelek számára. Ezen kívül öltöző és raktár is van az ingatlanban, plusz 5 db pincerész is a tulajdonos rendelkezésére áll.

Az épület teljesen berendezett és felszerelt, így azonnal birtokba vehető és használatra kész. Az új nyílászárók, az energia hatékony klíma, és az új villamoshálózat garantálják a modern és fenntartható üzemeltetést.

A közlekedési kapcsolatok kiválóak, köszönhetően a közeli belvárosnak, így ügyfelei könnyen megtalálják és megközelíthetik Önt. Az optikai internetkábellel ellátott ingatlan ideális választás akár technológiai szolgáltatásokhoz is.

Az ingatlan további előnyei közé tartozik egy pincehelyiség, erkély, saját tároló, valamint egy biztonsági riasztórendszer, amely garantálja az értékek védelmét. A pihenéshez pedig a kerti grillezőhely kínál különleges lehetőséget.

Ne hagyja ki ezt a páratlan lehetőséget vállalkozása fellendítésére Debrecen közkedvelt belvárosi részén! Érdeklődjön még ma, hogy ne maradjon le erről az egyedülálló ajánlatról!

**Jöjjön el, nézze meg, és képzelje el itt vállalkozását a jövőben!**

További információkért és megtekintésért keressen bizalommal!
TRIPSÓ TIBOR
+36 30 942 5373
Prémium ingatlanértékesítő
Városi Ingatlaniroda
Debrecen
(További képekért és információkért kérem hívjon!)

Iroda/üzlethelyiség részletei

Ár: 299 000 000 Ft
Méret: 230 négyzetméter
Azonosító: 11601925
Irodai azonosító: 164478
Jelleg: Üzlethelyiség

Így keressen budapesti ingatlant négy egyszerű lépésben. Csupán 2 perc, kötelezettségek nélkül!

Szűkítse a budapesti ingatlanok
listáját
Válassza ki a megfelelő
budapesti ingatlant
Írjon a hirdetőnek
Várjon a visszahívásra