Eladó iroda/üzlethelyiség Budapest XIV. ker 140 000 000 Ft

Leírás

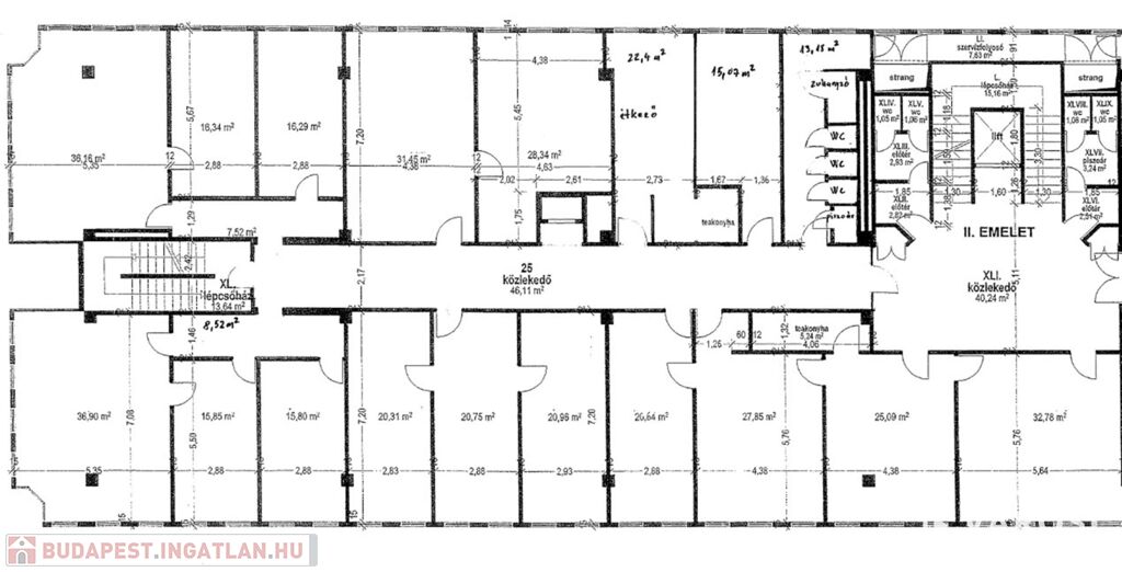
Eladó, komplex, több irodából álló egységet, kiszolgáló helyiségekkel kínálok megvételre Zuglóban, Alsórákos városrészben.
A csatolt alaprajz szerinti elrendezésben. Az irodák épületen belül a második emeleten helyezkednek el, elfoglalva a szint több mint fele területét.
Különböző méretű irodákkal, szerverszobával, öltözővel, wc-kel, zuhanyzóval, teakonyhával, szeparáltan az irodaház többi területétől.
Az ingatlanról még több kép is elérhető, amennyiben máshol talál a hirdetésre, a Városi ingatlaniroda weboldalán /varos pont hu/, a hirdetéseim között megtalálja.

Néhány főbb jellemző:
- önálló villany és gázmérő, vízórához almérő
- kondenzációs kazán, radiátoros fűtéssel
- minden helyiségben klíma
- szerverszoba, internetes hálózat kiépítve
- riasztórendszer ablaknyitásra, mozgásra és füstre
- videós kamerarendszer az irodák bejáratára
- teakonyha, hűtőgép, mosogatógép
- 3 wc, zuhanyzó, piszoár és öltözőszekrények
- antisztatikus padlóborítás
- külső parkolóhelyek is elérhetőek, de az utcán is ingyenes a parkolás
- 24 órás portaszolgálat
- lift van
A képeken látható teljes irodai bútorzattal része a vételárnak. Az irodák egy része bérbe is van adva, így azonnali bevételt is termel, a további üres irodák pedig azonnal bérbe adhatóak.
Várom hívását. Ingatlannal kapcsolatos kérdésekben bármikor, hangsúlyozom, bármikor hívhat.
De tényleg :-)

For sale: a complex, multi-office unit with auxiliary rooms, located in Zugló, in the Alsórákos district.

The layout corresponds to the attached floor plan. The offices are situated on the second floor of the building and occupy more than half of the entire level.

The property consists of offices of various sizes, a server room, changing room, restrooms, shower, kitchenette, and is fully separated from the rest of the office building.

More photos of the property are available – if you find the listing elsewhere, you can also view it among my advertisements on the Városi Ingatlaniroda website (varos.hu).

Main features:

Separate electricity and gas meters, sub-meter for water

Condensing boiler with radiator heating

Air conditioning in every room

Server room with fully built-out IT and internet network

Alarm system for window opening, motion and smoke detection

Video camera system monitoring the office entrance

Kitchenette with refrigerator and dishwasher

3 toilets, shower, urinal and locker cabinets

Anti-static flooring

Outdoor parking spaces available, and free street parking

24-hour reception / concierge service

Elevator in the building

All office furniture shown in the photos is included in the purchase price. Part of the offices are currently rented, providing immediate income, while the vacant units can be leased right away.

I look forward to your call. You may contact me anytime regarding the property – I really mean anytime.
Really.
(További képekért és információkért kérem hívjon!)

Iroda/üzlethelyiség részletei

Ár: 140 000 000 Ft
Méret: 483 négyzetméter
Azonosító: 11590039
Irodai azonosító: 864814
Jelleg: iroda

Így keressen budapesti ingatlant négy egyszerű lépésben. Csupán 2 perc, kötelezettségek nélkül!

Szűkítse a budapesti ingatlanok
listáját
Válassza ki a megfelelő
budapesti ingatlant
Írjon a hirdetőnek
Várjon a visszahívásra