Eladó iroda/üzlethelyiség Budapest XI. ker 79 900 000 Ft

Leírás

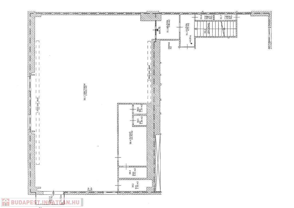
Eladó felújított, 199 m²-es táncterem Albertfalván, saját parkolóval!

Budapest XI. kerületében, Albertfalva frekventált részén, a Budafoki út közelében, ipari környezetben eladó egy 199 m²-es, 2024-ben teljeskörűen felújított táncterem 1/2 tulajdoni hányada.
Az ingatlan rendezett jogi hátterű, saját parkolóval és kiváló közlekedési kapcsolatokkal rendelkezik!

Főbb jellemzők

Alapterület: 199 m²

Tulajdoni hányad: 1/2

Felújítás éve: 2024 (új elektromos és vízvezeték-hálózat, burkolatok, nyílászárók, mosdó, tusoló, öltöző)

Felszereltség: riasztó, klíma

Tájolás: északnyugati

Parkolás: saját parkolóhely az épület előtt

Jogi helyzet: rendezett

Közlekedés és megközelíthetőség

Közlekedési szempontból kiemelkedő elhelyezkedés:

M0-s körgyűrű csomópont: 2 km

6-os főút: 1 km

M1–M7 bevezető: 5 km

Rákóczi híd budai hídfője: 3 km

Repülőtér: kb. 50 perc autóval

Tömegközlekedés: 33-as és 133E buszmegálló közvetlenül az épület előtt, további busz- és villamosjáratok 5–10 perc sétára

Iroda/üzlethelyiség részletei

Ár: 79 900 000 Ft
Méret: 99 négyzetméter
Azonosító: 11575242
Irodai azonosító: 388994
Cím: Hunyadi János út
Jelleg: Üzlethelyiség

Egyéb jellemzők

  • Garázs
  • Parkoló

Térkép


Így keressen budapesti ingatlant négy egyszerű lépésben. Csupán 2 perc, kötelezettségek nélkül!

Szűkítse a budapesti ingatlanok
listáját
Válassza ki a megfelelő
budapesti ingatlant
Írjon a hirdetőnek
Várjon a visszahívásra