Eladó iroda/üzlethelyiség Budapest VI. ker 115 000 000 Ft

Leírás

Eladó üzlethelyiség a VI. kerület legkedveltebb részén, a Szív utcában!

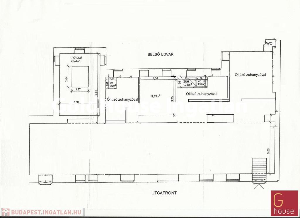
Budapest belvárosának pezsgő részén, Terézvárosban kínálunk megvételre egy 213 négyzetméteres, félszuterén üzlethelyiséget, amely egy impozáns, Heidlberr Vilmos által tervezett szecessziós bérházban kapott helyet.

Az ingatlan 2017-ben teljeskörű felújításon esett át: korszerűsítették a víz- és villanyhálózatot, a csatornarendszert, a nyílászárókat, felújították a gázkazánt, valamint modern, hőcserélős szellőztetőrendszert építettek be, így a helyiség műszaki állapota kifogástalan.

A jelenlegi kialakítás szerint egy tágas, nettó 110 négyzetméteres, egybefüggő tér áll rendelkezésre, amelyhez öltözők, mosdók és mellékhelyiségek csatlakoznak.

A funkcionális elrendezésnek és a kiváló megközelíthetőségnek köszönhetően ideális lehet fitnesz- vagy táncstúdiónak, jógateremnek, orvosi rendelőnek, irodának, galériának, bemutatóteremnek vagy akár kreatív műhelynek is, de bármilyen más kereskedelmi vagy szolgáltató tevékenységre is könnyen átalakítható.

Az ingatlan két utcai bejárattal rendelkezik, közvetlenül az utcáról megközelíthető, és az épület előtt felújított zöldfelület, valamint kényelmes parkolási lehetőség található.
A környék közlekedése kiváló, hiszen a Kodály körönd, az Andrássy út és a Hunyadi tér is rövid sétával elérhető.
A közös költség 40.000 forint.

Az eladási ár 115 millió forint.

A lokáció, a műszaki állapot és a praktikus elrendezés mind adott ahhoz, hogy ez az ingatlan hosszú távon is értékálló befektetés vagy sikeres vállalkozás színhelye legyen.

Iroda/üzlethelyiség részletei

Ár: 115 000 000 Ft
Méret: 213 négyzetméter
Azonosító: 11563605
Irodai azonosító: 14382
Cím: Szív utca
Jelleg: Üzlethelyiség
Helyiségek: 1

Egyéb jellemzők

  • Lift

Így keressen budapesti ingatlant négy egyszerű lépésben. Csupán 2 perc, kötelezettségek nélkül!

Szűkítse a budapesti ingatlanok
listáját
Válassza ki a megfelelő
budapesti ingatlant
Írjon a hirdetőnek
Várjon a visszahívásra