Eladó iroda/üzlethelyiség Budapest VI. ker 2 900 000 Euro

Leírás

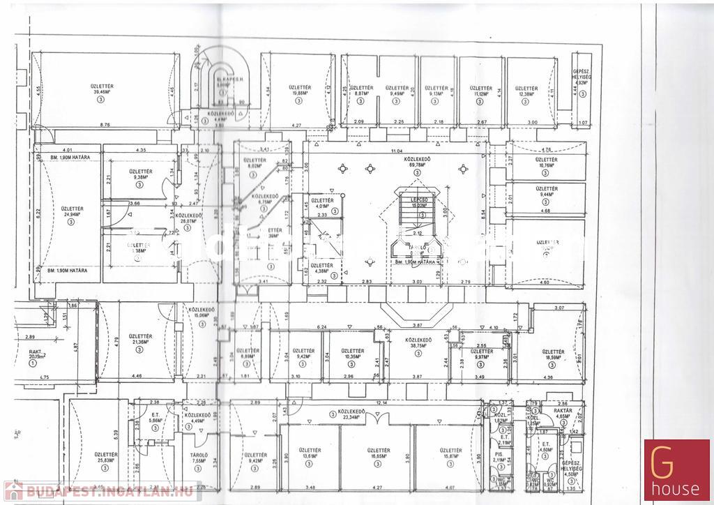
Budapest egyik legforgalmasabb csomópontjánál eladó, egy nagy portálokkal rendelkező, 994 nm-es, kétszintes üzlethelyiség-igény esetén kisebb terület is

A hely korábban bankfiók volt, így az üzlettéren kívül szerverszoba, teakonyha, mosdók, és több irodahelyiség és betörésbiztos helyiség is van bent. A helyiség felújítandó, igény szerint átalakítható.
Fűtés: cirkó. Ipari áram, légtechnika kialakított.

Kereskedelmi és szolgáltató tevékenységre egyaránt kiváló, kávézó-pékségnek, közértnek, üzletháznak, sport központnak, cégközpontnak, bankfióknak is átalakítható. (Pub, meleg konyha nem lehet) Befektetésre is kiváló, a két szint külön-külön is bérbeadható.

Földszint: 355 nm. Az üzlettér különlegessége, hogy egy részén üvegtető került kialakításra, mely természetes fényt biztosít a belső térben, ezáltal egyedi és hangulatos belső enteriőr alakítható ki.
Pince: 639 nm-es, lejárata az üzlettérből közelíthető meg. Amennyiben erre nincs szükség, ez a terület lezárható, a pince a ház udvaráról is megközelíthető. Ez a szint is padlólapos, korábban üzlethelyiségek üzemeltek itt is, egybefüggő nagy területek is kialakíthatók.

Tömegközlekedéssel kiválóan megközelíthető, parkolóház is van a közelben. Az üzlet több nagy portállal rendelkezik, tömegközlekedési eszközökről is kiváló a láthatósága.

Eladási ár: 2.900.000 EUR+áfa. Pince nélkül: 2.500.000 EUR+áfa. Céggel együtt is megvásárolható.
Bővebb infó személyesen.

Iroda/üzlethelyiség részletei

Ár: 2 900 000 Euro
Méret: 994 négyzetméter
Azonosító: 11477679
Irodai azonosító: 13989
Cím: Andrássy út -Oktogon vonzásában
Jelleg: Üzlethelyiség
Helyiségek: 1

Egyéb jellemzők

  • Lift

Így keressen budapesti ingatlant négy egyszerű lépésben. Csupán 2 perc, kötelezettségek nélkül!

Szűkítse a budapesti ingatlanok
listáját
Válassza ki a megfelelő
budapesti ingatlant
Írjon a hirdetőnek
Várjon a visszahívásra