Eladó ipari ingatlan Törökbálint 427 000 000 Ft

Leírás

Eladó ipari ingatlan teljes felszereltséggel Törökbálinton!

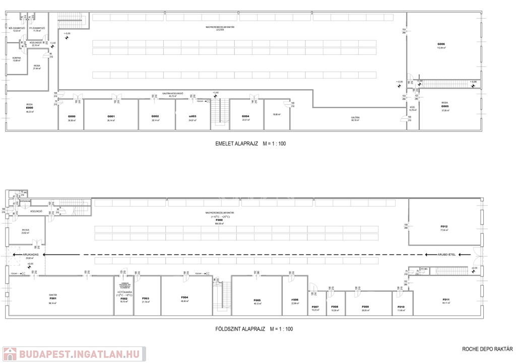
Törökbálint iparterületén, kiváló közlekedési adottságokkal, megvételre kínálunk egy 1730 m²-es ipari létesítményt, amely sokoldalú felhasználásra alkalmas.

Főbb jellemzők:
• Raktárnak és üzemnek egyaránt kialakítható
• Polcrendszerrel, targoncával felszerelt, fűthető raktár
• Hidegraktár és hűtőkamra is rendelkezésre áll
• Kamionok számára 2 rakodási pont rámpával
• Az irodarész és tárgyaló teljes körűen felújított, modern, bútorozott és légkondicionált
• Szociális helyiségek: konyha, öltöző és vizes helyésgek
• Két szintes kialakítás, amelyben irodák, tárgyalók és raktárak találhatók, valamint műhely vagy üzem is könnyen kialakítható
• Biztonságos, zárható irattár és trezor, beléptető rendszer kamerával
• Csúszásmentes, mosható műgyanta padló.

Az ipari ingatlan könnyen megközelíthető az M0 autópályáról, súlykorlátozás nélkül, ahol 12 személyautó számára kialakított parkoló is rendelkezésre áll.

További kérdéseivel vagy egyedi igényekkel kapcsolatban kérem, forduljon hozzám bizalommal! Segítek megtalálni az Ön számára ideális megoldást.

Vételár: 427 M Ft

Ipari ingatlan részletei

Ár: 427 000 000 Ft
Méret: 1 700 négyzetméter
Azonosító: 11473112
Irodai azonosító: 377783
Cím: Üzem, raktár és iroda egy helyen!
Ingatlan állapota: Átlagos
Jelleg: egyéb

Térkép


Így keressen budapesti ingatlant négy egyszerű lépésben. Csupán 2 perc, kötelezettségek nélkül!

Szűkítse a budapesti ingatlanok
listáját
Válassza ki a megfelelő
budapesti ingatlant
Írjon a hirdetőnek
Várjon a visszahívásra