Eladó ipari ingatlan Tiszakécske 135 000 000 Ft

Leírás

Tiszakécskén, közvetlenül a főút mellett a tiszakécskei gyógy-és termál fürdő és a Tisza parti üdülőövezet közelében, eladó egy több épületből álló ingatlan.


A most megépülő M44 autópályán könnyen elérhető az ország bármely pontja.

Az épület alkalmas szálloda, panzió, nyugdíjas otthon, munkás szálló kialakítására is.
A XX.század elején épült alápincézett kastély épületben 8 szoba és fürdők.
A 80-as években épült L alakú épületben amelynek egyik szárnya emeletes 13 szoba található mindegyikben fürdőszobával.
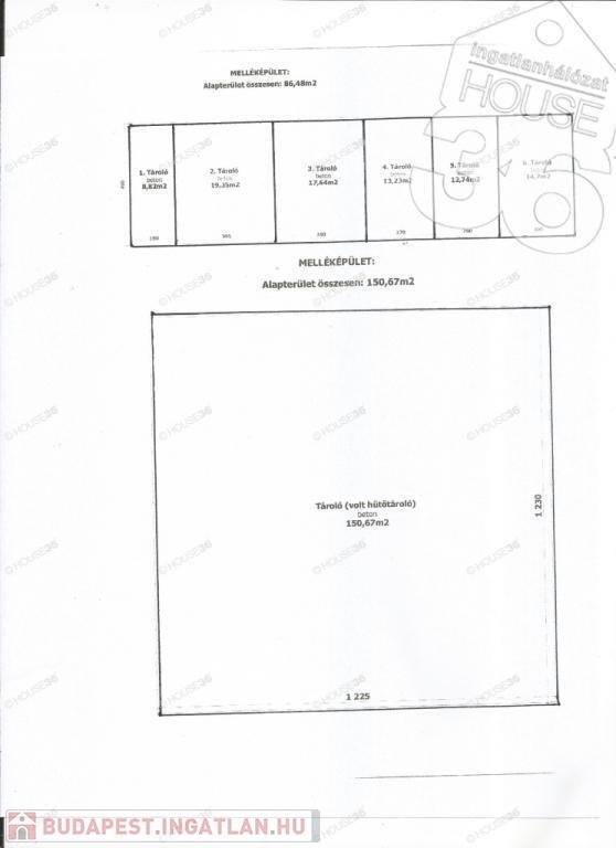
Melléképület raktárakkal.
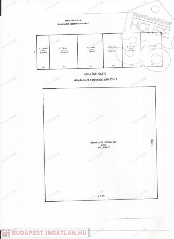
A telken található még egy 150 m2 alapterületű hűtőház.

- összközműves
- teljesen bekerített 8599 m2 telek
- buszmegálló a kapuban
- főút mellett
- kúria épület 210.74 m2
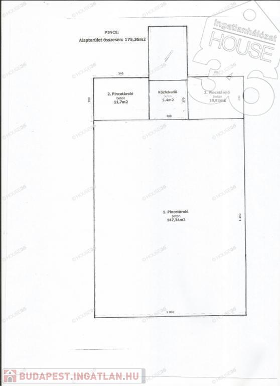
- Pince a főépület alatt 175.36 m2
- L alakú épület földszint 349,51 m2
- L alakú épület emelet 228.3 m2
- Tároló hűtő 150.67 m2
- melléképület 84.48 m2

Az épületekben további szobák kialakítására is van lehetőség.
Rendezett parkosított terület .
Mivel a 90-es évek vége óta az ingatlan nincs hasznosítva ezért felújítást igényel.

Az ingatlan akár hét végén is megtekinthető.Hívjon.Nézzük meg.

Figyelem az adatlap megbízónktól kapott adatok alapján készült pontosságáért felelősséget vállalni nem tudunk.
Az iroda legfrissebb, aktuális kínálatát a HOUSE36 saját weboldalán találja!

Ipari ingatlan részletei

Ár: 135 000 000 Ft
Méret: 960 négyzetméter
Azonosító: 11398796
Irodai azonosító: 3615731-4277412
Ingatlan állapota: Átlagos
Jelleg: egyéb
Helyiségek: 1

Térkép


Így keressen budapesti ingatlant négy egyszerű lépésben. Csupán 2 perc, kötelezettségek nélkül!

Szűkítse a budapesti ingatlanok
listáját
Válassza ki a megfelelő
budapesti ingatlant
Írjon a hirdetőnek
Várjon a visszahívásra