Eladó ipari ingatlan Téglás 180 000 000 Ft

Leírás

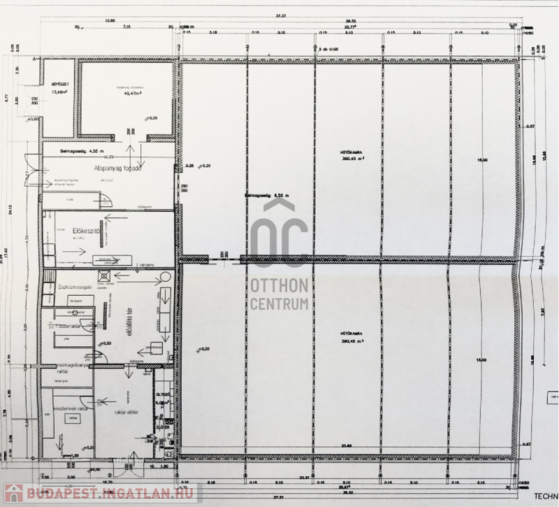
Debrecentől 20 km-re Téglás település gazdasági-ipari övezetében található telephely eladó. Az épület 2015-ben épült, Bruttó alapterülete 1194 m2, telekterület összesen 5600 m2.
Közművek: a telephelyen víz, csatorna és 3 fázisú ipari áram van bevezetve.

Jellemzői:
- 12 kW-os napelem rendszer
- Szilárd burkolatú belső út
- Acél vázszerkezetű 20 cm vastag szendvicspanelből készült.
- 2 db 390 m2 6,55 m belmagasságú és 1 db 42 m2 hűtőtér/raktár
- az előkészítő/manipuláló tér tégla építésű 240 m2 4,55 m belmagasságú
- személyzeti öltöző, zuhanyzó
- irodarész
- elkülönített zárt hulladéktároló
- kerítéssel körbekerített
- teherforgalom bonyolítására alkalmas
Az ingatlan tehermentes.
Eladási ára: 180.000.000 Ft

Bővebb tájékoztatással, megtekintéssel kapcsolatban keressen bizalommal. Hétvégén is!

Ipari ingatlan részletei

Ár: 180 000 000 Ft
Méret: 1 194 négyzetméter
Azonosító: 11263267
Ingatlan állapota: Kérdezzen rá a hirdetőtől »
Jelleg: egyéb

Így keressen budapesti ingatlant négy egyszerű lépésben. Csupán 2 perc, kötelezettségek nélkül!

Szűkítse a budapesti ingatlanok
listáját
Válassza ki a megfelelő
budapesti ingatlant
Írjon a hirdetőnek
Várjon a visszahívásra