Eladó ipari ingatlan Kecskemét 95 000 000 Ft

Leírás

Otthonok és Megoldások!
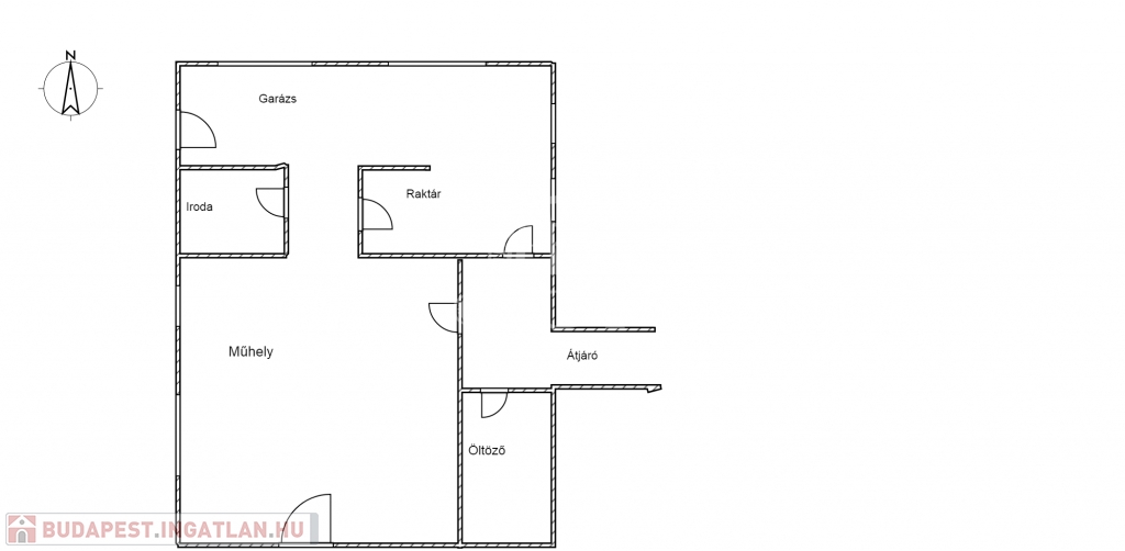
Kecskemét, Kisfái területén, 4616 nm telken, 640 nm felépítmény, kereskedelmi, szolgáltató gazdasági területen (Gksz. besorolású) eladó. A két átjáróval összekötött épület a legutóbbi időkig asztalosüzemként működött, melyek irodának, öltözőnek, raktárnak és garázsnak is helyet biztosítottak. Amennyiben felkeltette érdeklődését e kamionokkal is könnyen megközelíthető, főútvonalakhoz közel eső, több célra hasznosítható, ipari ingatlan, hívjon bátran!

Ipari ingatlan részletei

Ár: 95 000 000 Ft
Méret: 640 négyzetméter
Azonosító: 11365746
Irodai azonosító: 322219
Cím: Kisfái
Ingatlan állapota: Átlagos
Jelleg: egyéb

Térkép


Így keressen budapesti ingatlant négy egyszerű lépésben. Csupán 2 perc, kötelezettségek nélkül!

Szűkítse a budapesti ingatlanok
listáját
Válassza ki a megfelelő
budapesti ingatlant
Írjon a hirdetőnek
Várjon a visszahívásra