Eladó ipari ingatlan Kecskemét 185 000 000 Ft

Leírás

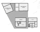
Hunyadivárosban eladó egy 844 m2-es telken lévő nappali + 2 szobás családi ház a hozzá tartozó melléképülettel és üzlethelyiséggel.

Egyéb jellemzők:

- magas minőségű burkolatok
- egyedi cseresznyefa beltéri ajtók
- műanyag nyílászárók + redőny + szúnyogháló
- cirkó fűtés ( padló + radiátor)
- 38 as Porotherm tégla + 13 cm szigetelés
- elektromos kapu
- elektromos garázskapu
- fürdőszobákban Hüppe zuhanykabin, Laufen wc , Wellis masszázs kád
- klíma
- térburkolt udvar
- különálló 100 m2-es üzlethelyiség
- melléképület 136 m2 ( Padlófűtés)
- 3-6 állásos garázs
-A tulajdonos kéréséreaz ingatlan bemutatása egy személyes konzultáció után történik, ahol részletes tájékoztatást kaphat az ingatlan paramétereiről és egyébkényelmi szolgáltatásairól!Figyelem az adatlap megbízónktól kapott adatok alapján készült, pontosságáért felelősséget nem tudunk vállalni!
Az iroda legfrissebb, aktuális kínálatát a HOUSE36 saját weboldalán találja.

Ipari ingatlan részletei

Ár: 185 000 000 Ft
Méret: 140 négyzetméter
Azonosító: 11594697
Irodai azonosító: 3618287-4711570
Cím: 140 nm-es raktár eladó Kecskemét
Ingatlan állapota: Átlagos
Jelleg: raktár
Helyiségek: 1

Térkép


Így keressen budapesti ingatlant négy egyszerű lépésben. Csupán 2 perc, kötelezettségek nélkül!

Szűkítse a budapesti ingatlanok
listáját
Válassza ki a megfelelő
budapesti ingatlant
Írjon a hirdetőnek
Várjon a visszahívásra