Eladó ipari ingatlan Hajdúböszörmény 199 000 000 Ft

Leírás

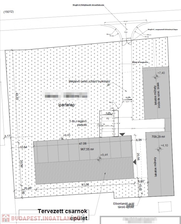
Hajdúviden 5602 nm-s telken, 709 nm-s iroda és műhely épülettel eladó!

A területre építhető még egy tervekkel és engedélyekkel rendelkező 956 nm hasznos alapterületű csarnok. Az építéshez szükséges acélszerkezet váza a területen található, alapozás után felállítható.

A területen minden közmű megtalálható.
A jelenlegi épületek fűtése fatüzelésű kazánnal megoldott!

A terület egyéb ipari gazdasági övezet, 30 % beépíthetőséggel, az új csarnok megépítésével maximálisan ki van használva.

Ha bármi további kérdése van vagy szeretné megtekinteni, kérem hívjon!

Ipari ingatlan részletei

Ár: 199 000 000 Ft
Méret: 709 négyzetméter
Azonosító: 11609788
Irodai azonosító: 361536
Cím: Hajdúvid
Ingatlan állapota: Átlagos
Jelleg: egyéb

Térkép


Így keressen budapesti ingatlant négy egyszerű lépésben. Csupán 2 perc, kötelezettségek nélkül!

Szűkítse a budapesti ingatlanok
listáját
Válassza ki a megfelelő
budapesti ingatlant
Írjon a hirdetőnek
Várjon a visszahívásra