Eladó ipari ingatlan Csengőd 43 999 000 Ft

Leírás

Csengődön, 6012 m2-es telekterületen elhelyezkedő ipari ingatlan ELADÓ!

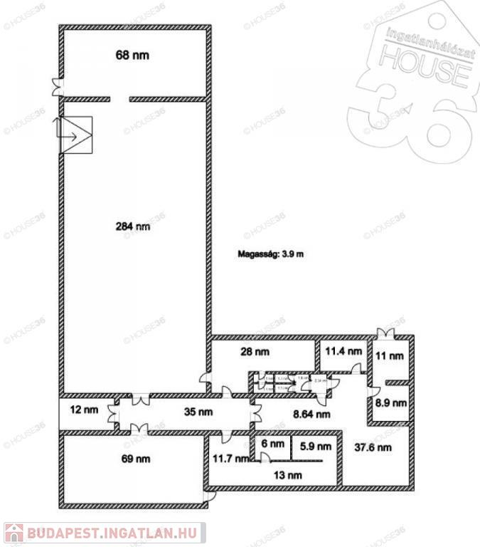
Az ingatlan kiváló lehetőséget teremt a kis és közép vállalkozások számára. A 654 m2-es üzemrész mellett további: tárolók, raktár, betonozott udvarrész, parkoló, szolgálati lakás is része az ingatlannak. Az épület kiépített elszívó berendezéssel rendelkezik, jól megközelíthető. BEFEKTETÉSRE IS ALKALMAS INGATLAN!

Főbb jellemzők:
- 654 m2 üzemi épület,porta épület, kerékpár tárolókkal,raktár épület, külön lakórész, körbekerített terület.
- 6012 m2-es rendezett udvar,saját kiépített parkoló.
- 3 gázkazán és egy gázcirkó kazán biztosítja a fűtést.
- Tehermentes, hitelezhető ingatlan, befektetésre is alkalmas ingatlan.

Figyelem az adatlap megbízónktól kapott adatok alapján készült, pontosságáért felelősséget nem tudunk vállalni!
Szolgáltatásaink kereső ügyfeleink számára ingyenesek!A tulajdonos kérésére az ingatlan bemutatása egy személyes konzultáció után történik, ahol részletes tájékoztatást kaphat az ingatlan paramétereiről és dokumentációjáról.
Az iroda legfrissebb, aktuális kínálatát a HOUSE36 saját weboldalán találja!

Ipari ingatlan részletei

Ár: 43 999 000 Ft
Méret: 654 négyzetméter
Azonosító: 11570132
Irodai azonosító: 3615986-5034500
Ingatlan állapota: Átlagos
Jelleg: Üzem
Helyiségek: 1

Egyéb jellemzők

  • Csatorna
  • Gáz
  • Villany
  • Víz

Térkép


Így keressen budapesti ingatlant négy egyszerű lépésben. Csupán 2 perc, kötelezettségek nélkül!

Szűkítse a budapesti ingatlanok
listáját
Válassza ki a megfelelő
budapesti ingatlant
Írjon a hirdetőnek
Várjon a visszahívásra