Eladó ipari ingatlan Csátalja 59 000 000 Ft

Leírás

Bács-Kiskun Vármegye déli részén található Csátalján, nagy családi ház ipari termelésre is alkalmas melléképületekkel, nagy telekkel, belterületen, eladó- kiadó.
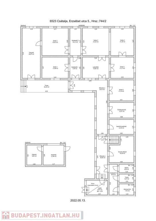
A lakóház az 1930-as években épült, bruttó 308 nm alapterületű, 8 szobás, polgári stílusú, összkomfortos ház, felújítandó állapotú. Alaprajz mellékelve.
A ház alatt 43 nm-es boltíves pince.
A téglaépítésű melléképületek együttes alapterülete 628 nm: műhelyek, tárolók, kiszolgáló helyiségek. A legnagyobb egy légtérű helyiség 243 nm-es, targoncával is bejárható.
Fedett-nyitott tárolók együttesen 490 nm alapterülettel, targoncával bejárható.
A melléképületekről, fedett-nyitott tárolókról is van alaprajz.
Az udvar részben betonozott( kb. 1.000 nm), kamiont is elbír.
Közművek:
- vezetékes víz
- vezetékes gáz
- villany 3 x 50 Amper
A melléképületekben jelenleg faipari tevékenység folyik. A fotókon látható gépek nem tartozékok, de külön megállapodással megvehetők.
A telek kb 1/3 része beépítetlen, jelenleg fatároló és itt fordulnak meg a nagyobb járművek.
Az ingatlan bérelhető is, bérleti díj 450 eFt/hó+ ÁFA
Minden kérdésre szívesen válaszolunk, hívjon vagy írjon bátran!
Ezt az ingatlant csak a Czakó Ingatlaniroda hirdeti!

Ipari ingatlan részletei

Ár: 59 000 000 Ft
Méret: 936 négyzetméter
Azonosító: 11453714
Irodai azonosító: 2428
Cím: Erzsébet utca 5
Telek: 7844 Négyzetméter
Ingatlan állapota: Átlagos
Jelleg: műhely és raktár
Tulajdonviszony: Tulajdonjog

Egyéb jellemzők

  • Gáz
  • Ipari áram
  • Villany
  • Víz

Térkép


Így keressen budapesti ingatlant négy egyszerű lépésben. Csupán 2 perc, kötelezettségek nélkül!

Szűkítse a budapesti ingatlanok
listáját
Válassza ki a megfelelő
budapesti ingatlant
Írjon a hirdetőnek
Várjon a visszahívásra