Eladó ipari ingatlan Csátalja 29 000 000 Ft

Leírás

Bács-Kiskun Vármegye déli részén található Csátalján, belterületen, jelenleg faipari üzemként működő telephely, nagy telekkel, eladó- kiadó.
A téglaépítésű épületek együttes alapterülete 628 nm: műhelyek, tárolók, kiszolgáló helyiségek. A legnagyobb egy légtérű helyiség 243 nm-es, targoncával is bejárható.
Fedett-nyitott tárolók együttesen 490 nm alapterülettel, targoncával bejárhatók.
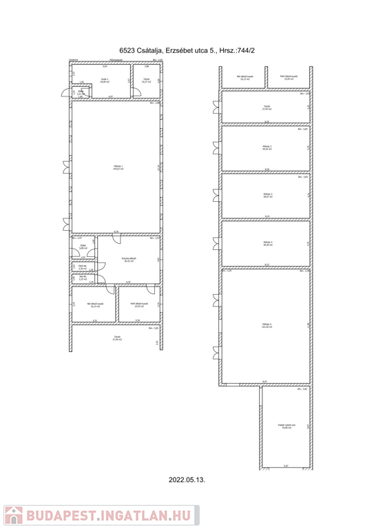
Alaprajzok a fotók között.
Az udvar részben betonozott( kb. 1.000 nm), kamiont is elbír.
Közművek:
- vezetékes víz
- vezetékes gáz
- villany 3 x 50 Amper
A melléképületekben jelenleg faipari tevékenység folyik. A fotókon látható gépek nem tartozékok, de külön megállapodással megvehetők.
A telek kb 1/3 része beépítetlen, jelenleg fatároló és itt fordulnak meg a nagyobb járművek.
Az ingatlan bérelhető is, bérleti díj 450 eFt/hó+ ÁFA
Minden kérdésre szívesen válaszolunk, hívjon vagy írjon bátran!
Ezt az ingatlant a Czakó Ingatlaniroda hirdeti!

Ipari ingatlan részletei

Ár: 29 000 000 Ft
Méret: 628 négyzetméter
Azonosító: 11531233
Irodai azonosító: 2512
Cím: Erzsébet utca 5
Telek: 7000 Négyzetméter
Ingatlan állapota: Átlagos
Jelleg: Üzem
Elhelyezkedés: Különálló
Tulajdonviszony: Tulajdonjog
Helyiségek: 20

Egyéb jellemzők

  • Gáz
  • Ipari áram
  • Villany
  • Víz

Így keressen budapesti ingatlant négy egyszerű lépésben. Csupán 2 perc, kötelezettségek nélkül!

Szűkítse a budapesti ingatlanok
listáját
Válassza ki a megfelelő
budapesti ingatlant
Írjon a hirdetőnek
Várjon a visszahívásra